ОДЦ схемы, планы, разрезы
В Че полным ходом и ударными темпами идёт возведение здания, которое станет доминантой исторического центра города.

Красивая картинка, которую наверное в Челябинске видели, буквально, все. Общественно-деловой центр, получивший рабочее название - "Крылья".
А что скрывается за этой картинкой?
На официальном сайте выложены гигабайты строительной документации, объёмы которой вполне сопоставимы с полным собранием сочинений В. И. Ленина.
Попытался найти что-нибудь, что могло дать хоть какое-то наглядное представление о том, что-же всё-таки там строится.
Итак: что "откопал" и культурно спёр, условно можно разделить на три части.
Стройгенпланы, планы монтажа
ВСЕ СХЕМЫ КЛИКАБЕЛЬНЫ
01. Стройгенплан на подготовительный период

02. Стройгенплан на период возведения подземной части

03. Стройгенплан на период возведения надземной части

04. Календарный план

07. Блок Б. Схема монтажа несущих металлоконструкций зданий

08. Блок Б. Планы монтажа несущих металлоконструкций зданий

Разрезы
09. Разрез 1-1

10. Разрез 2-2

11. Разрез А 1-1

12. Разрез В 1-1

13. Разрез С 1-1
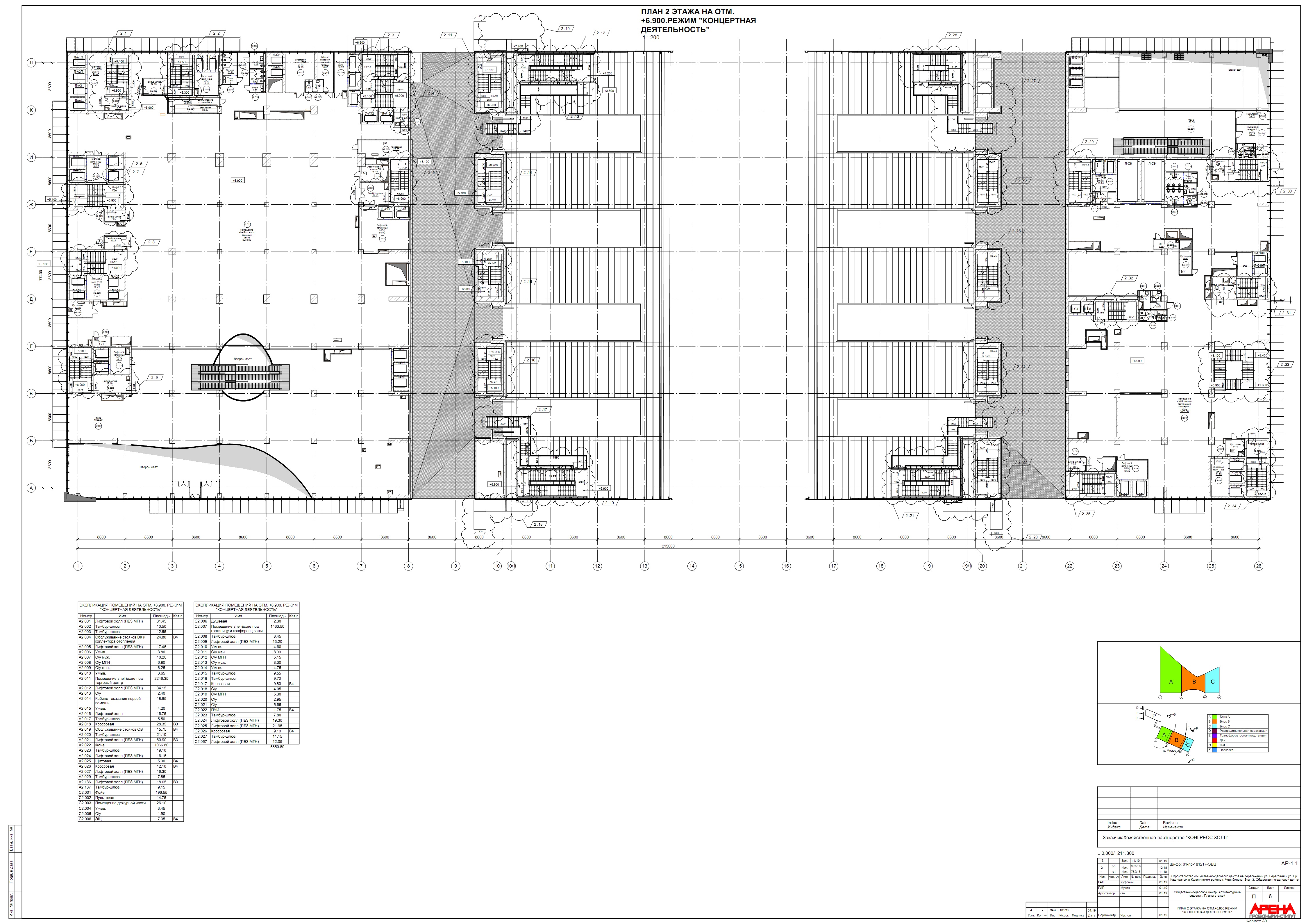
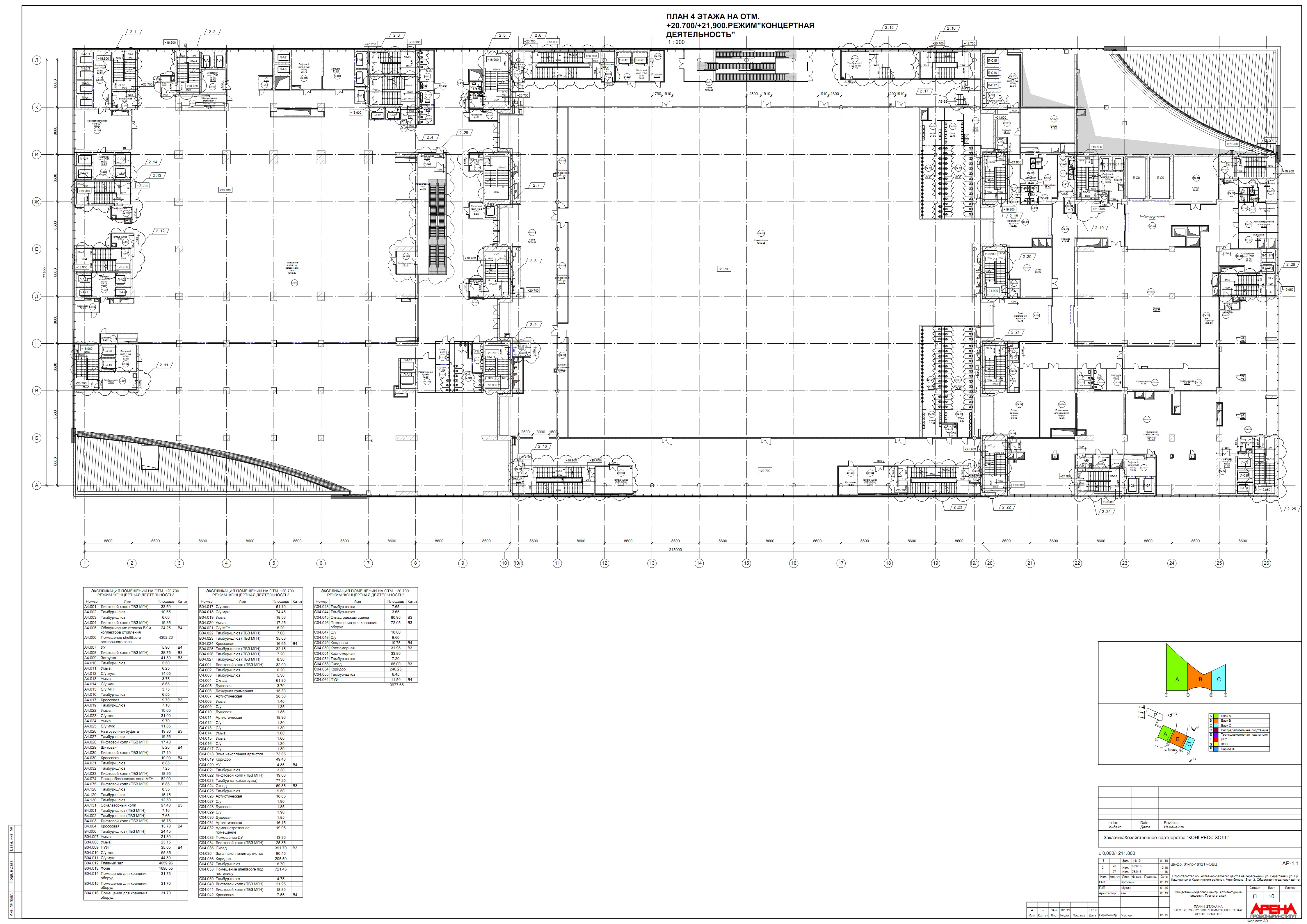
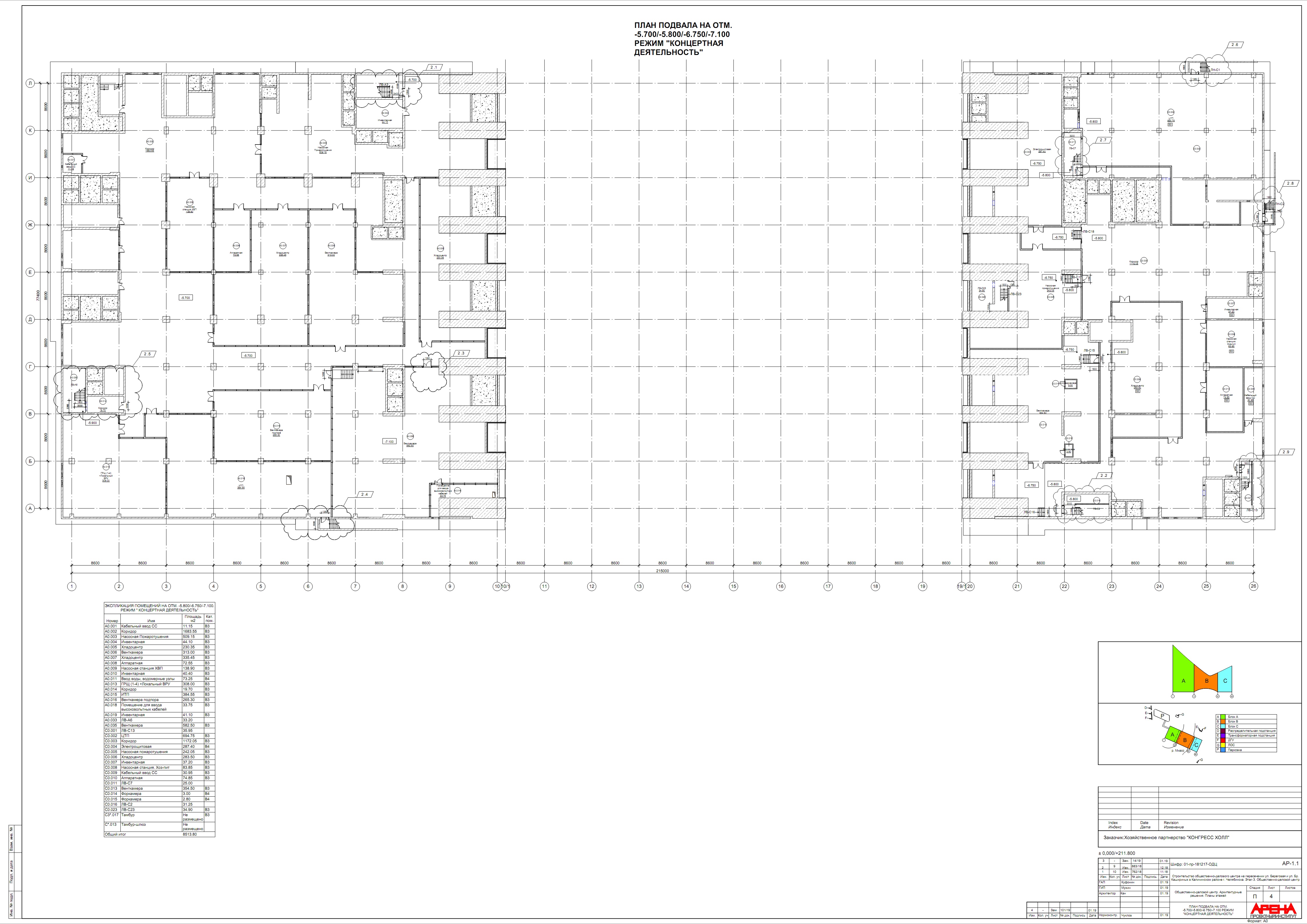
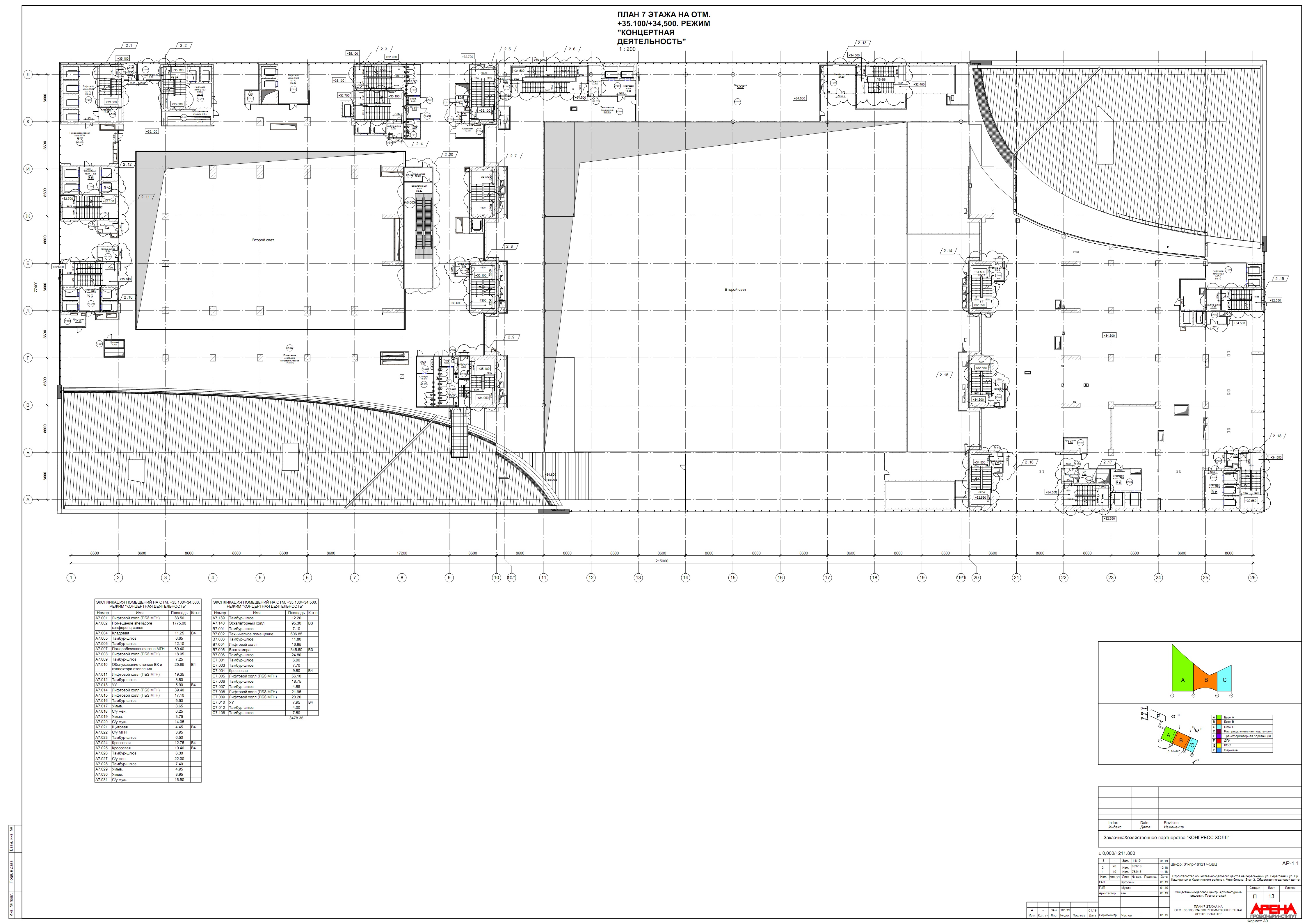
Планы этажей
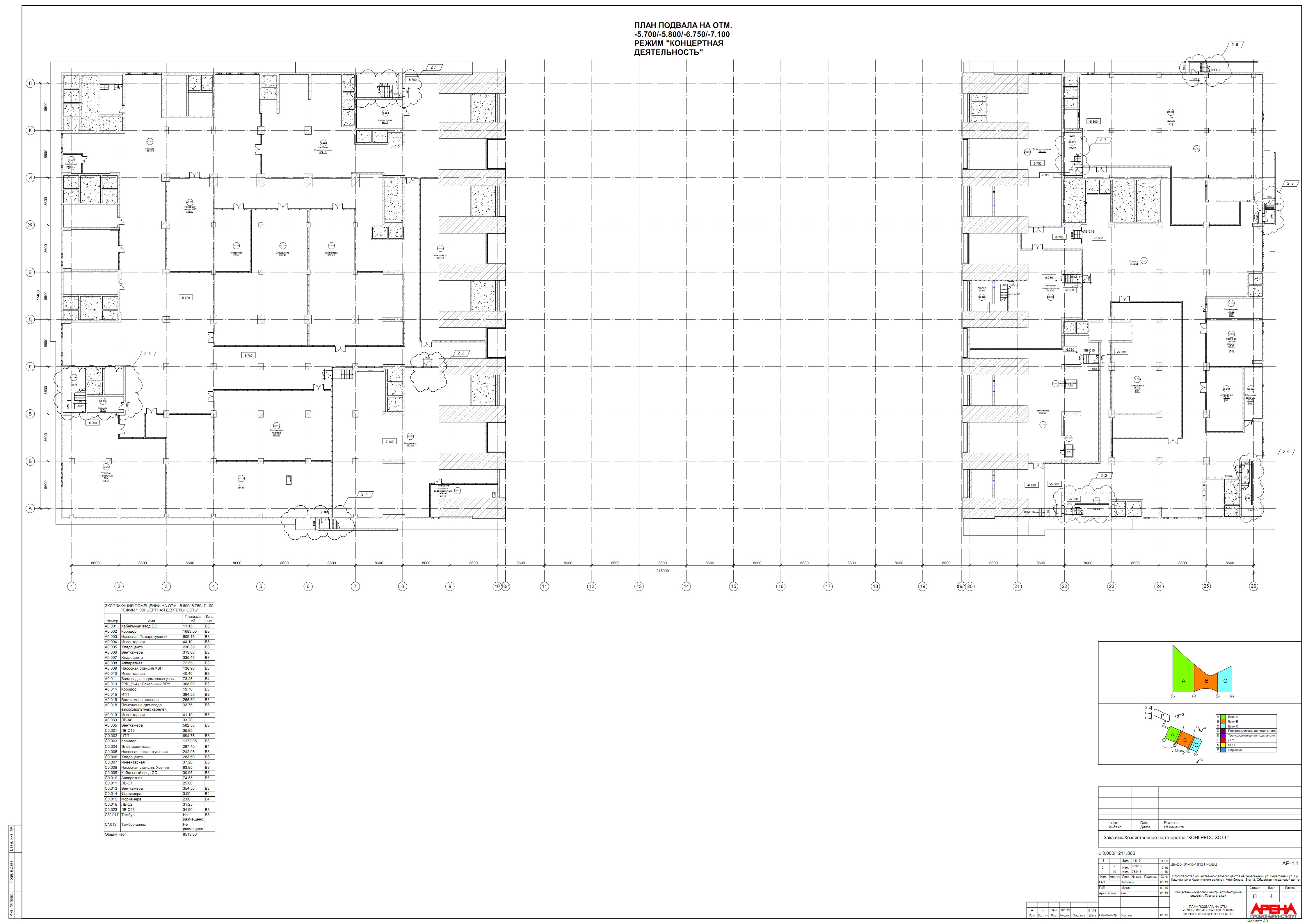
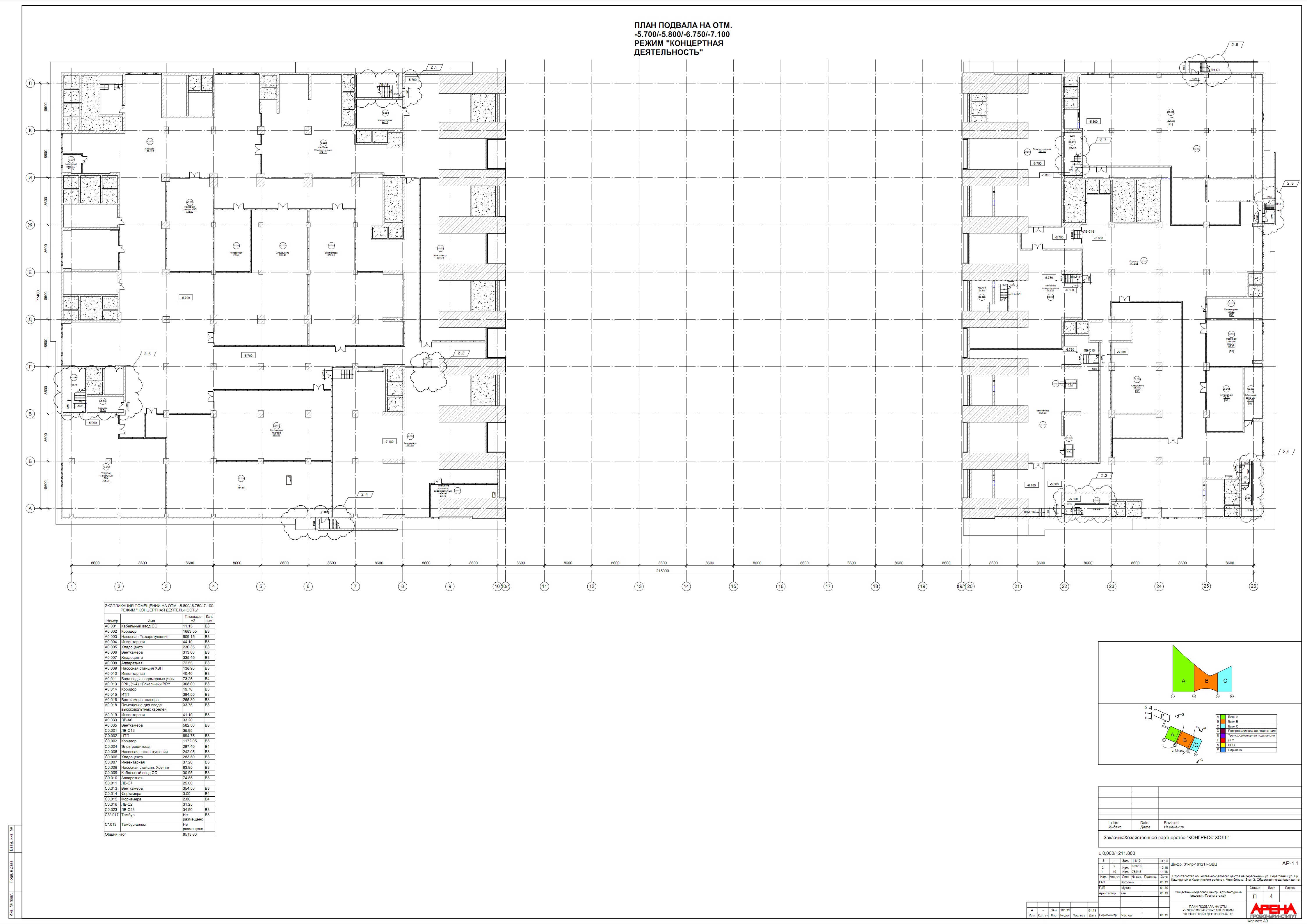
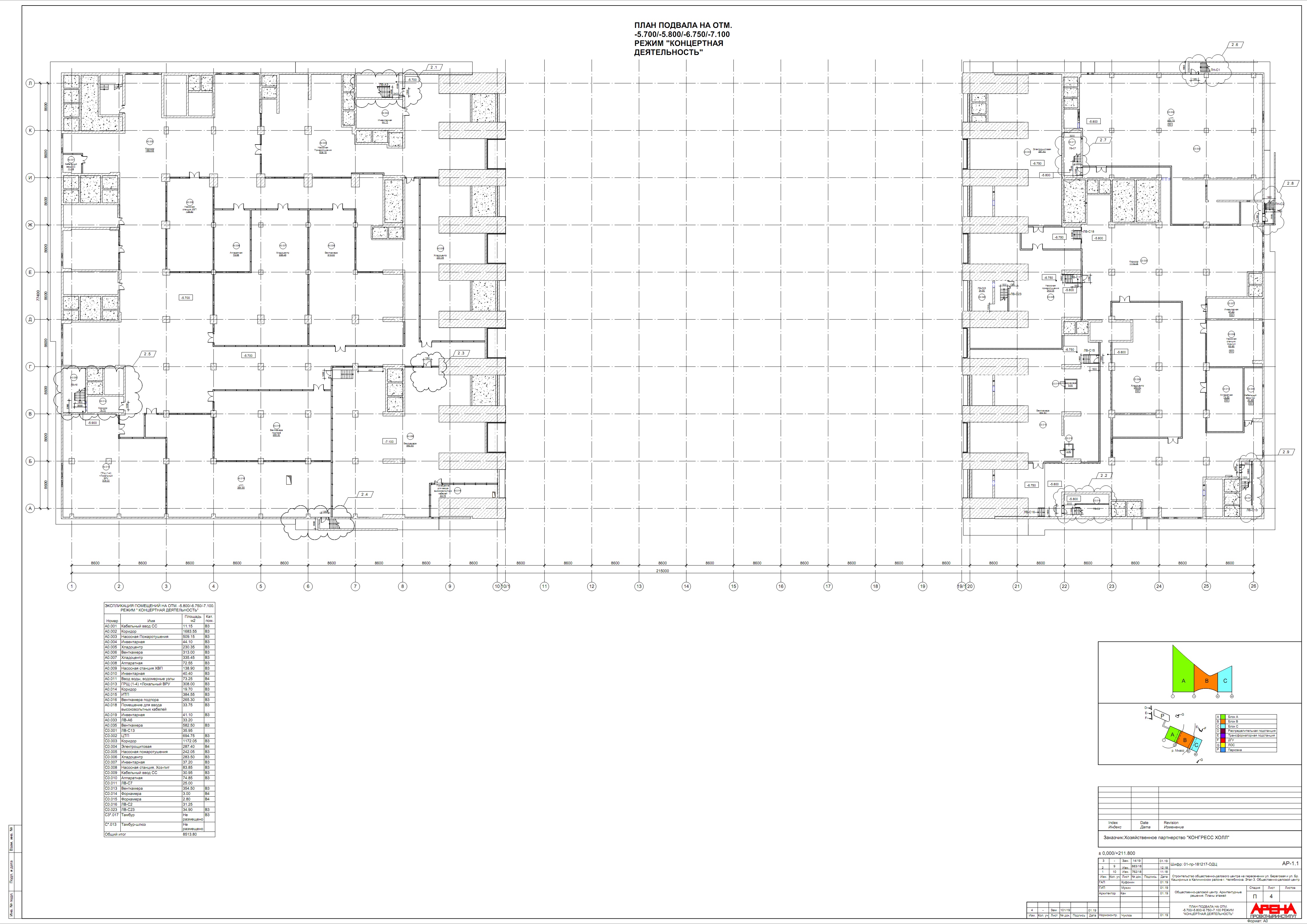
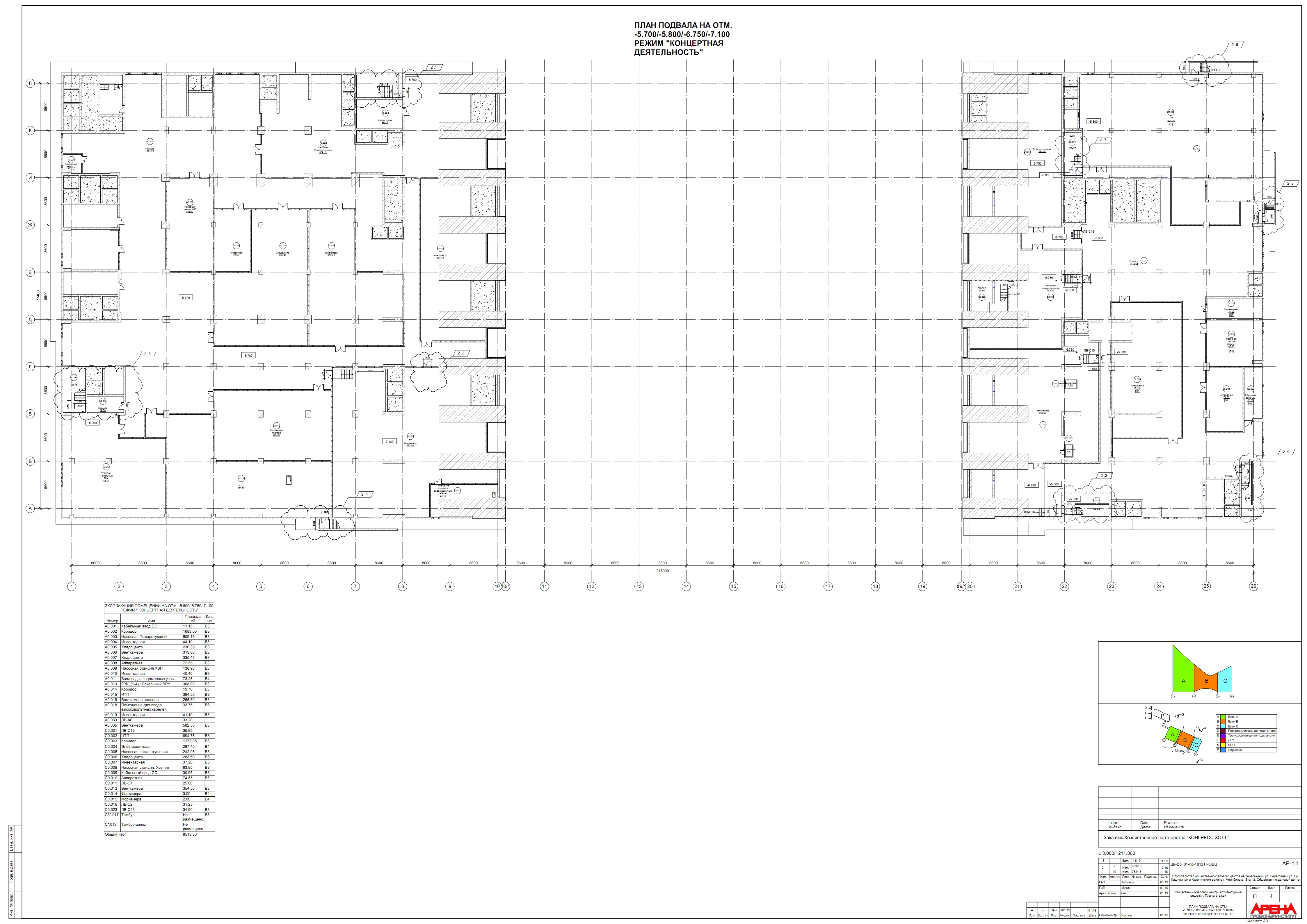
14. План подвала
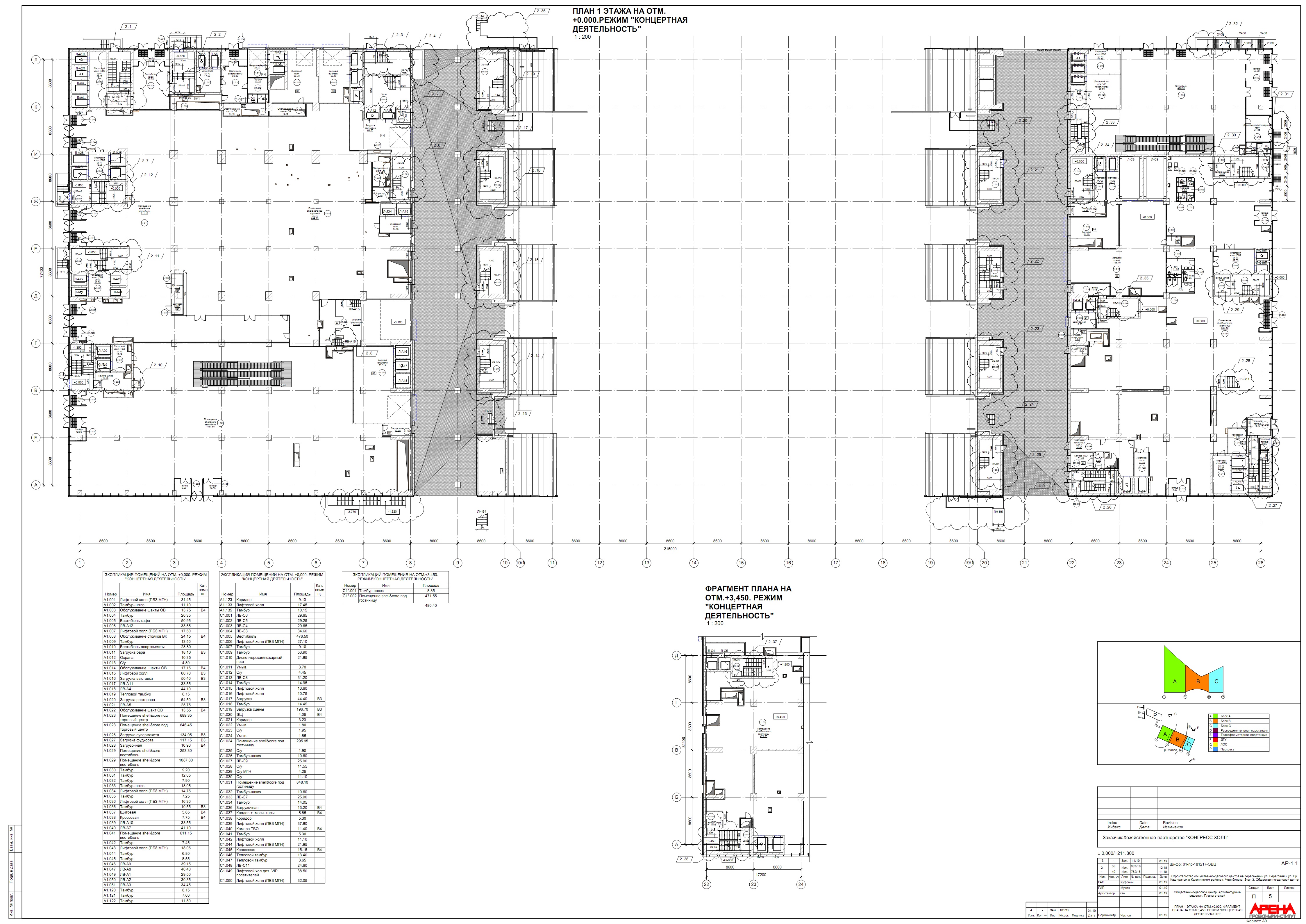
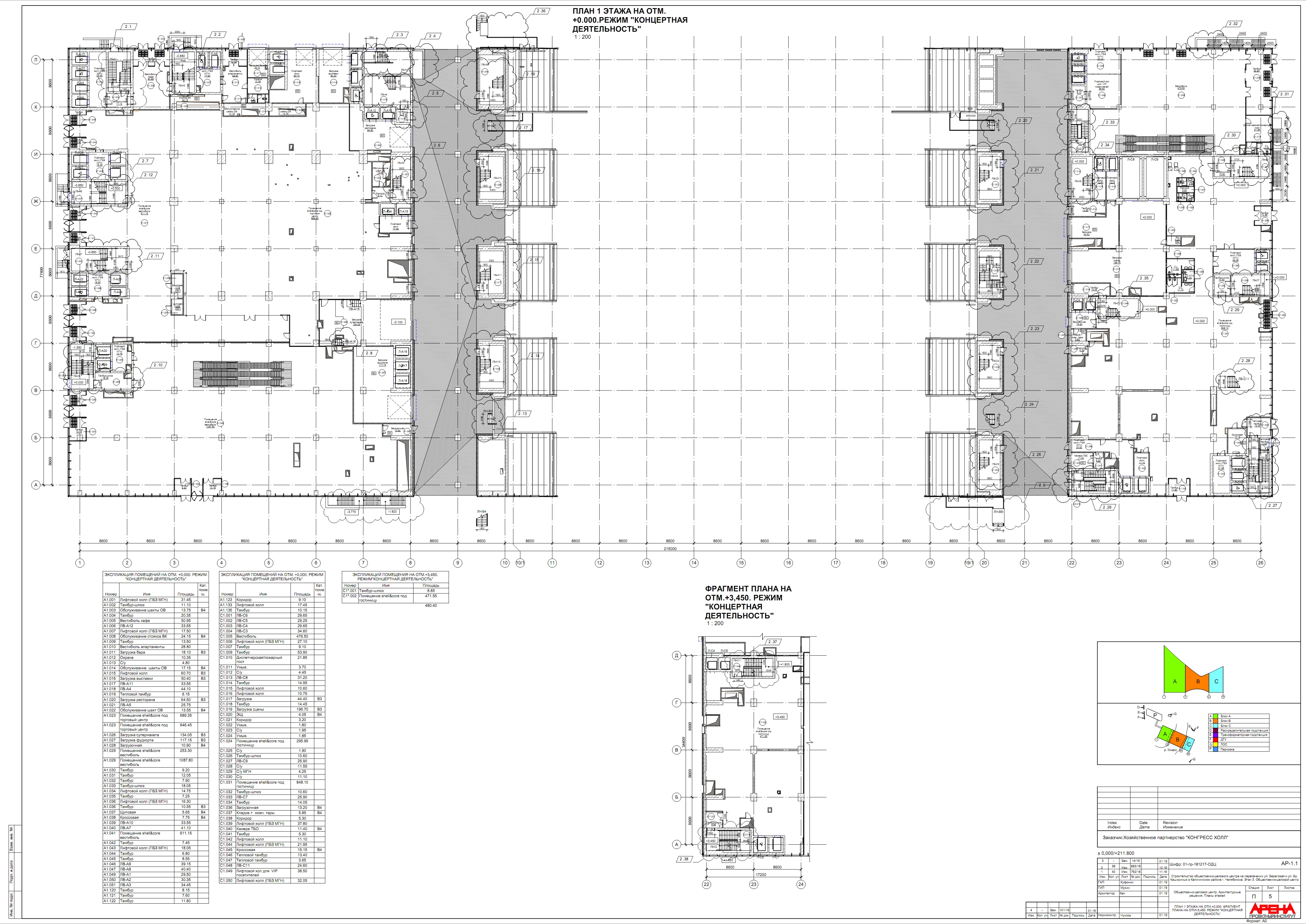
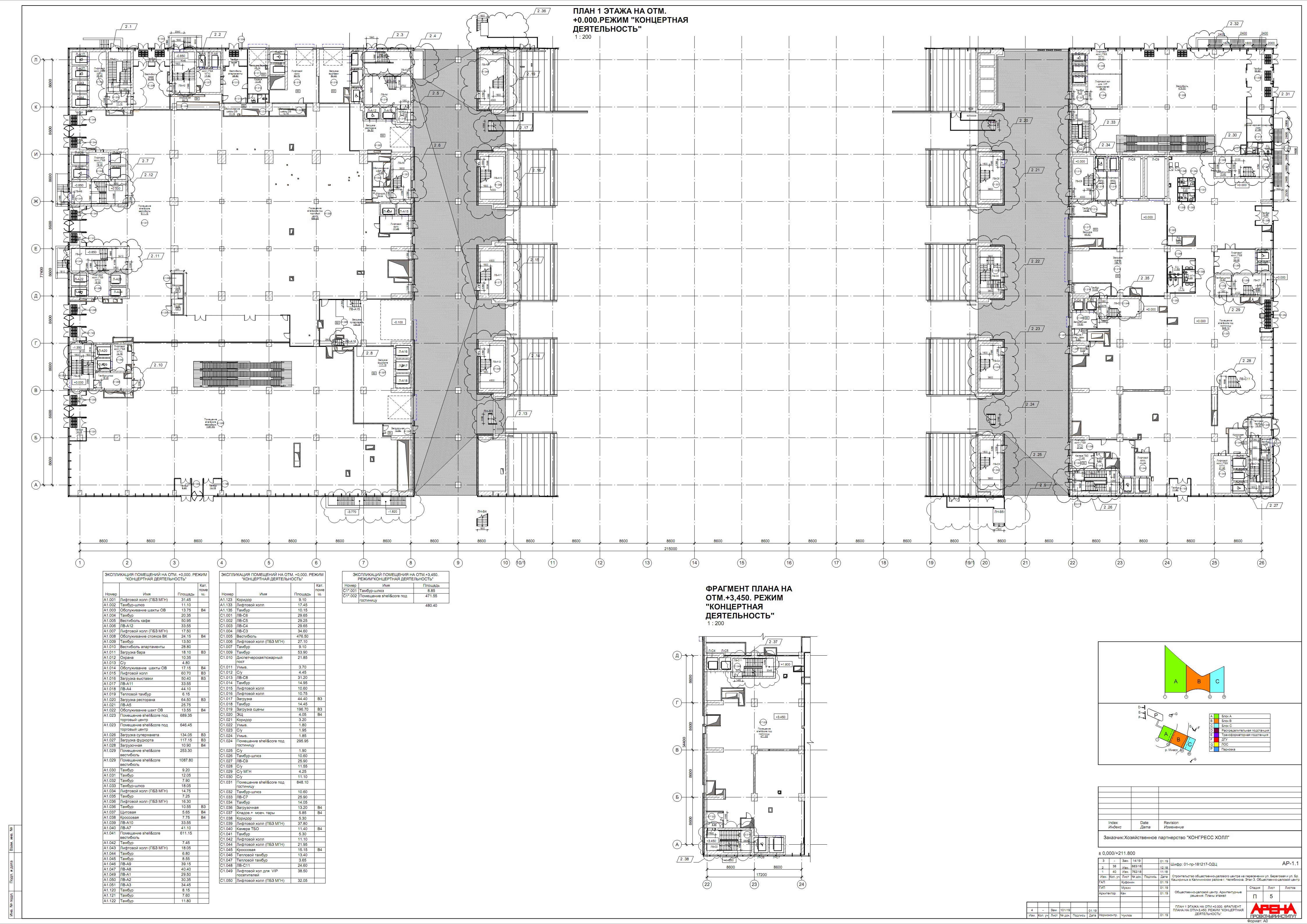
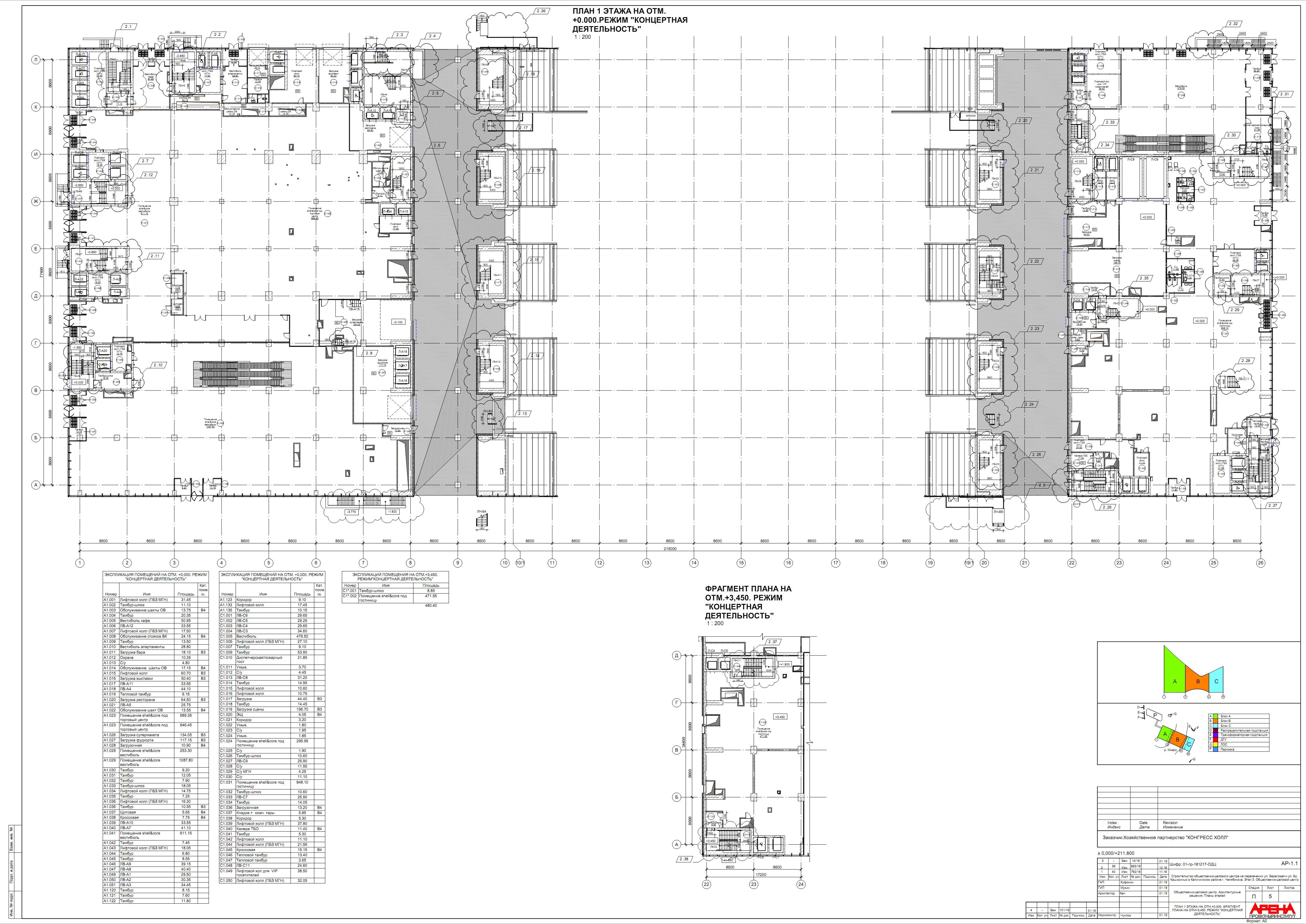
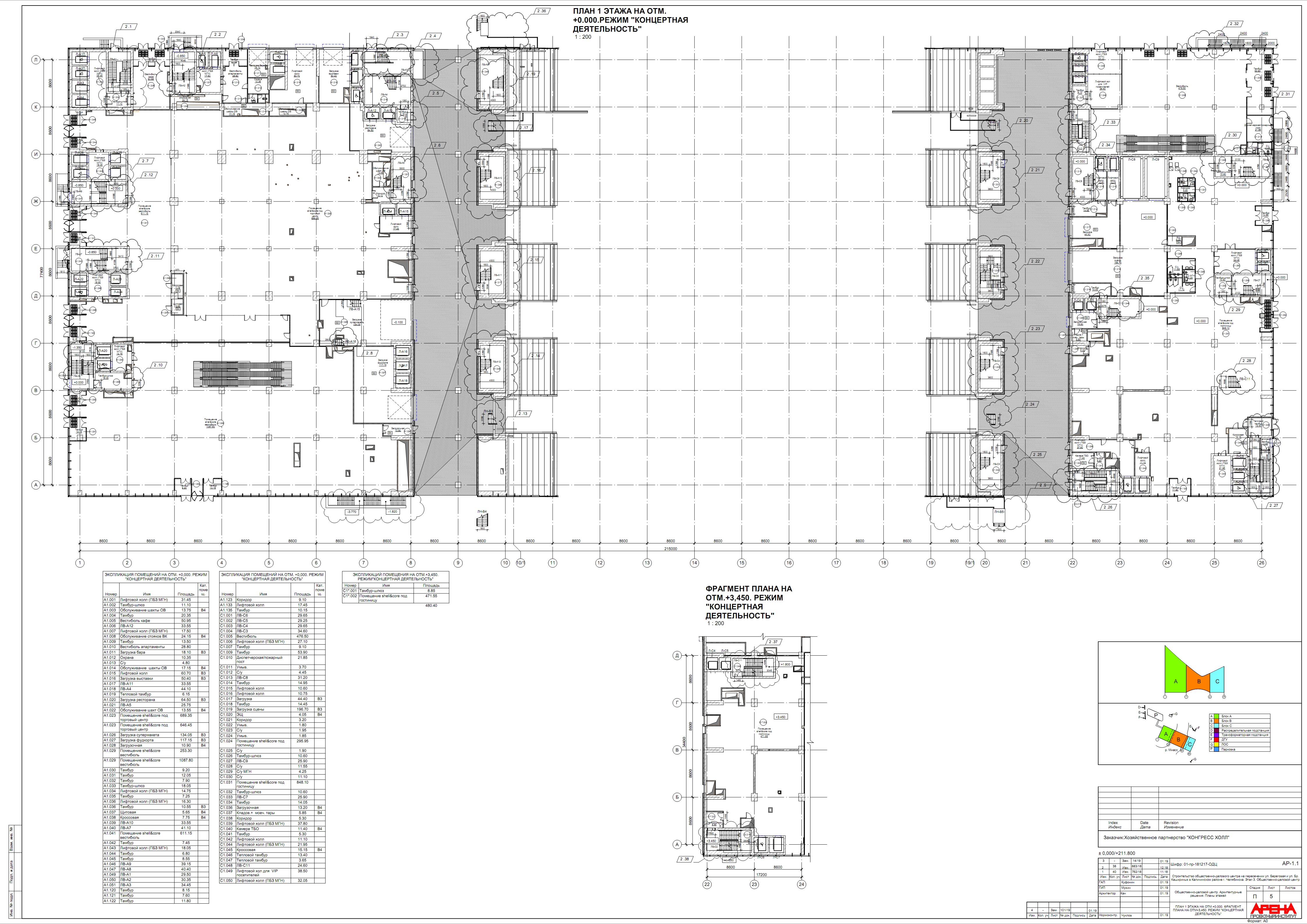
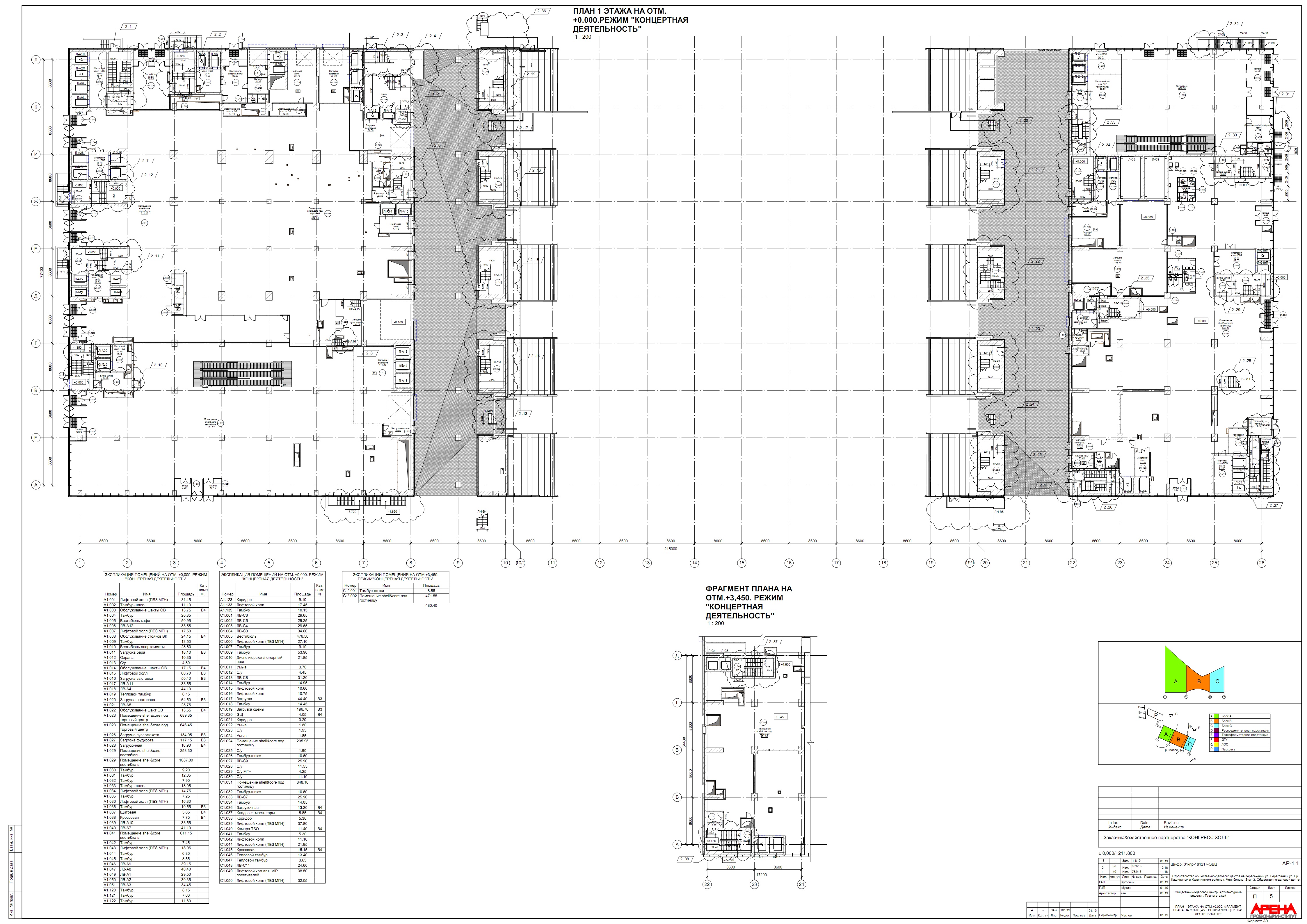
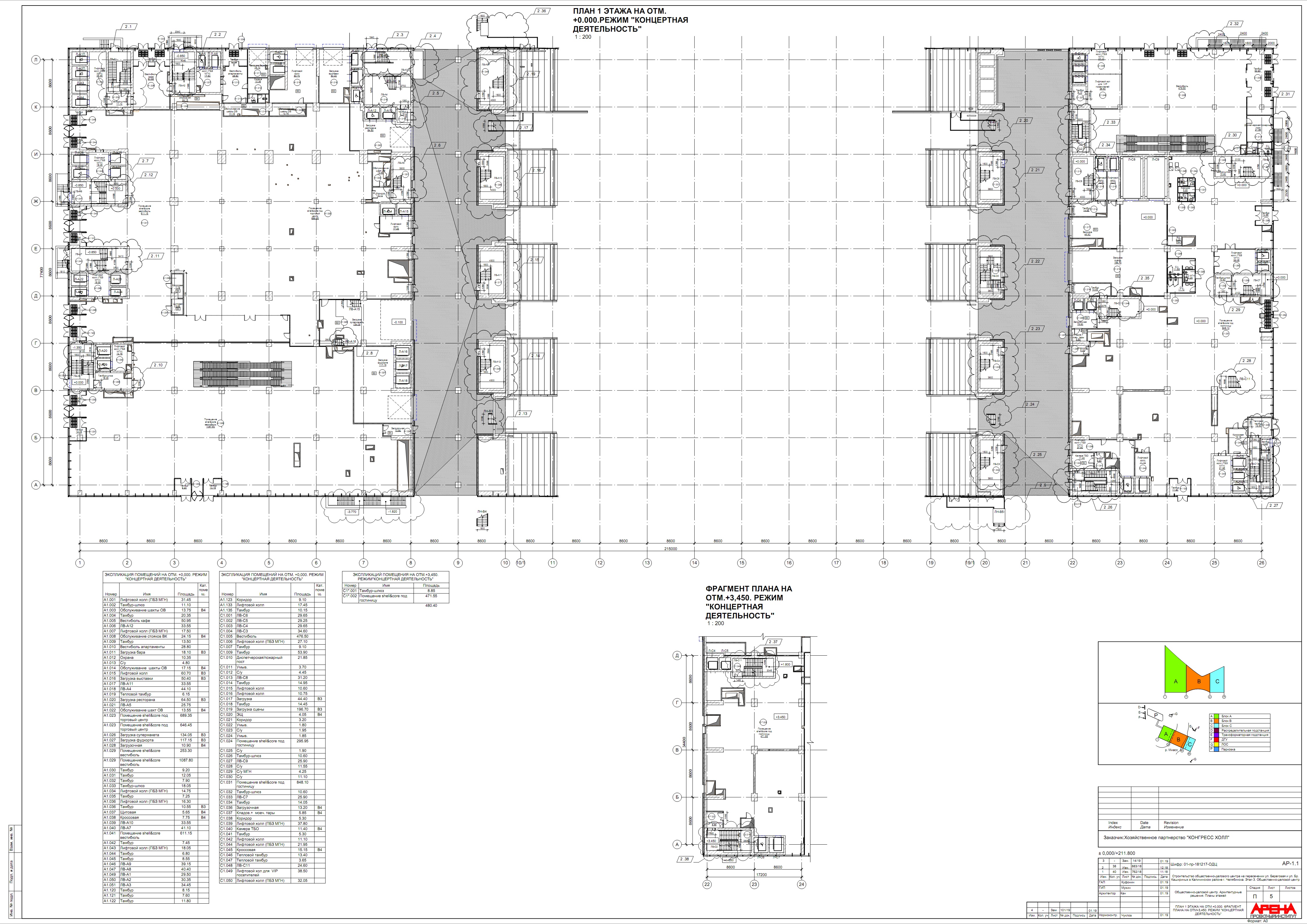
15. План 1 этажа
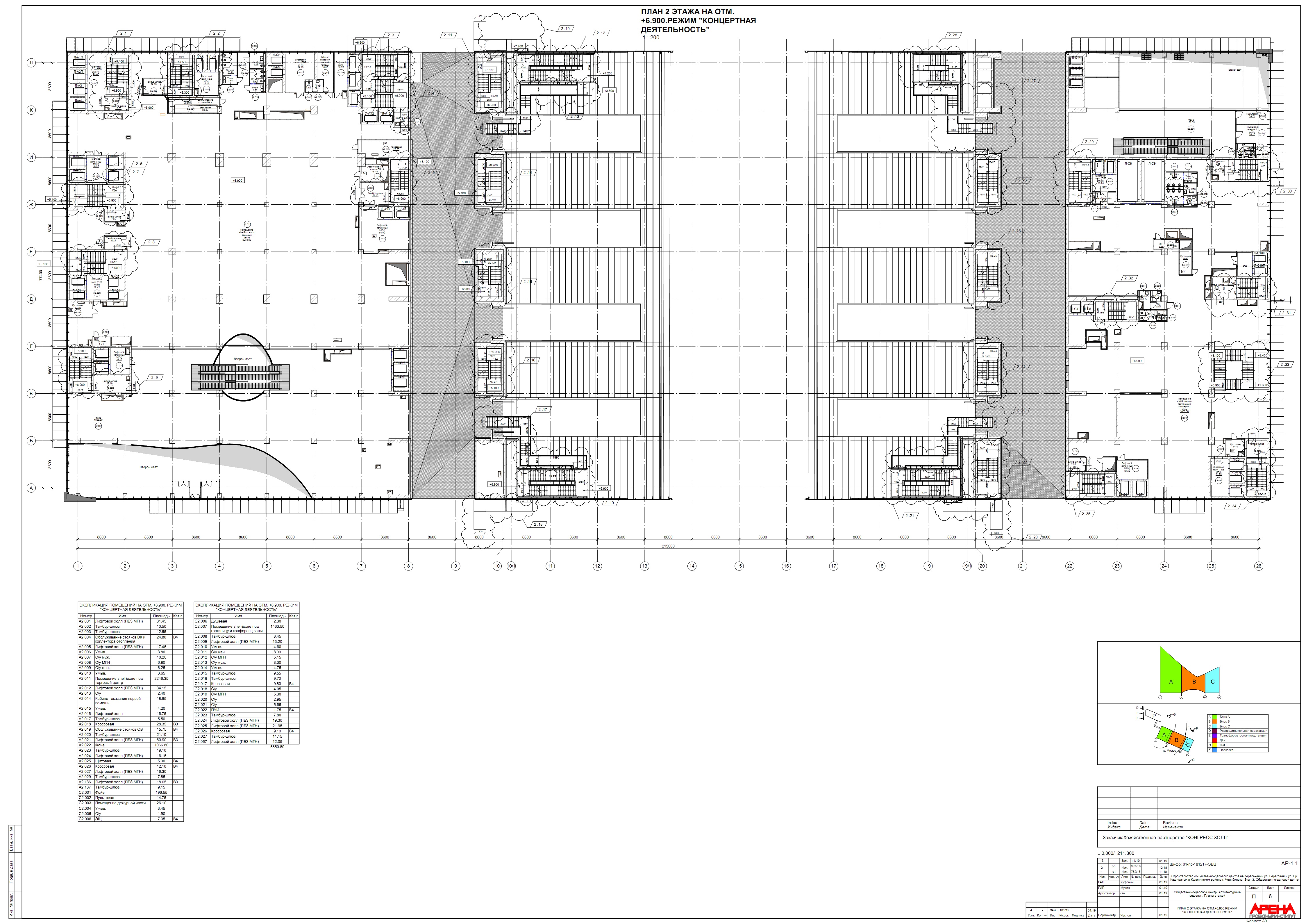
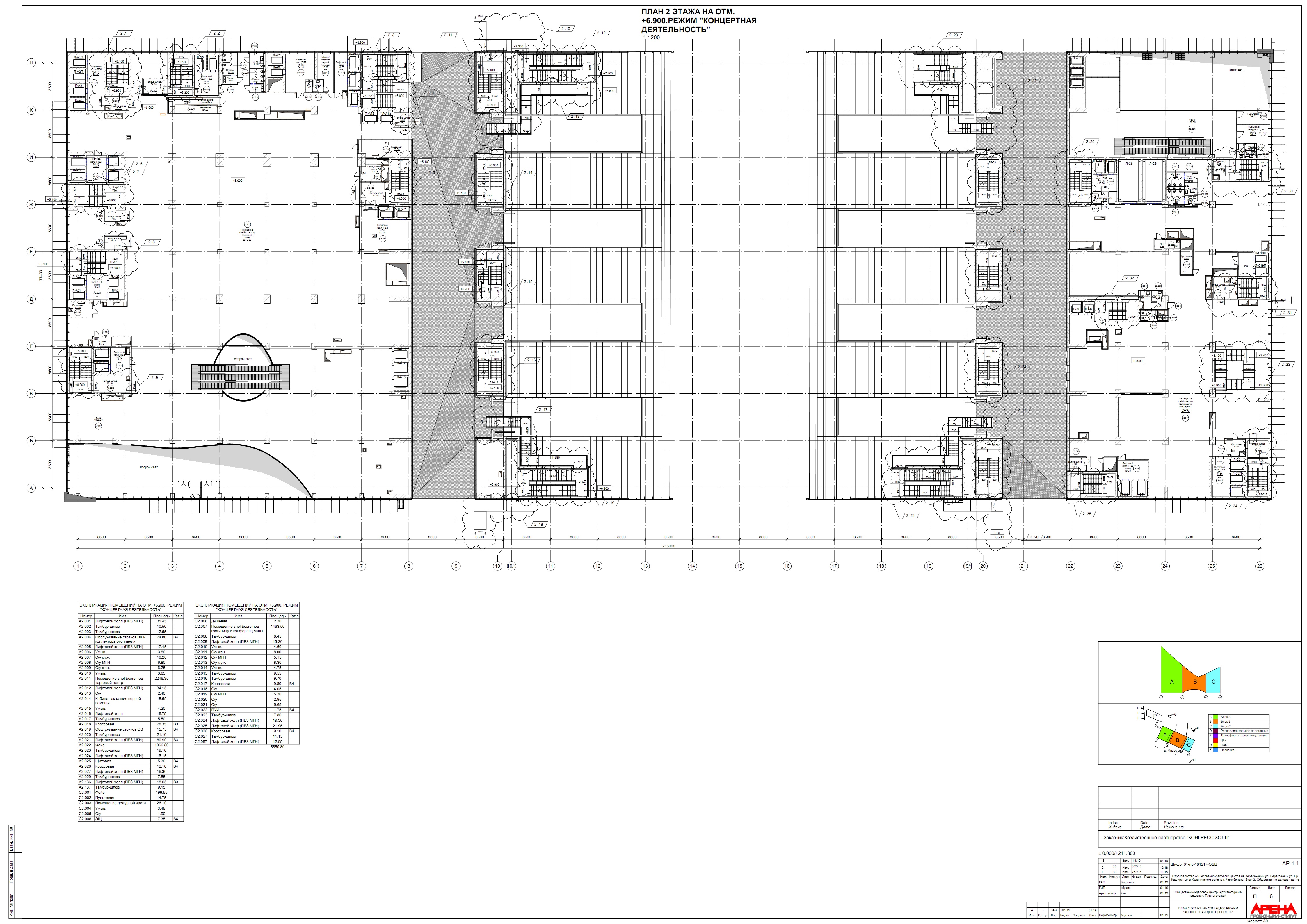
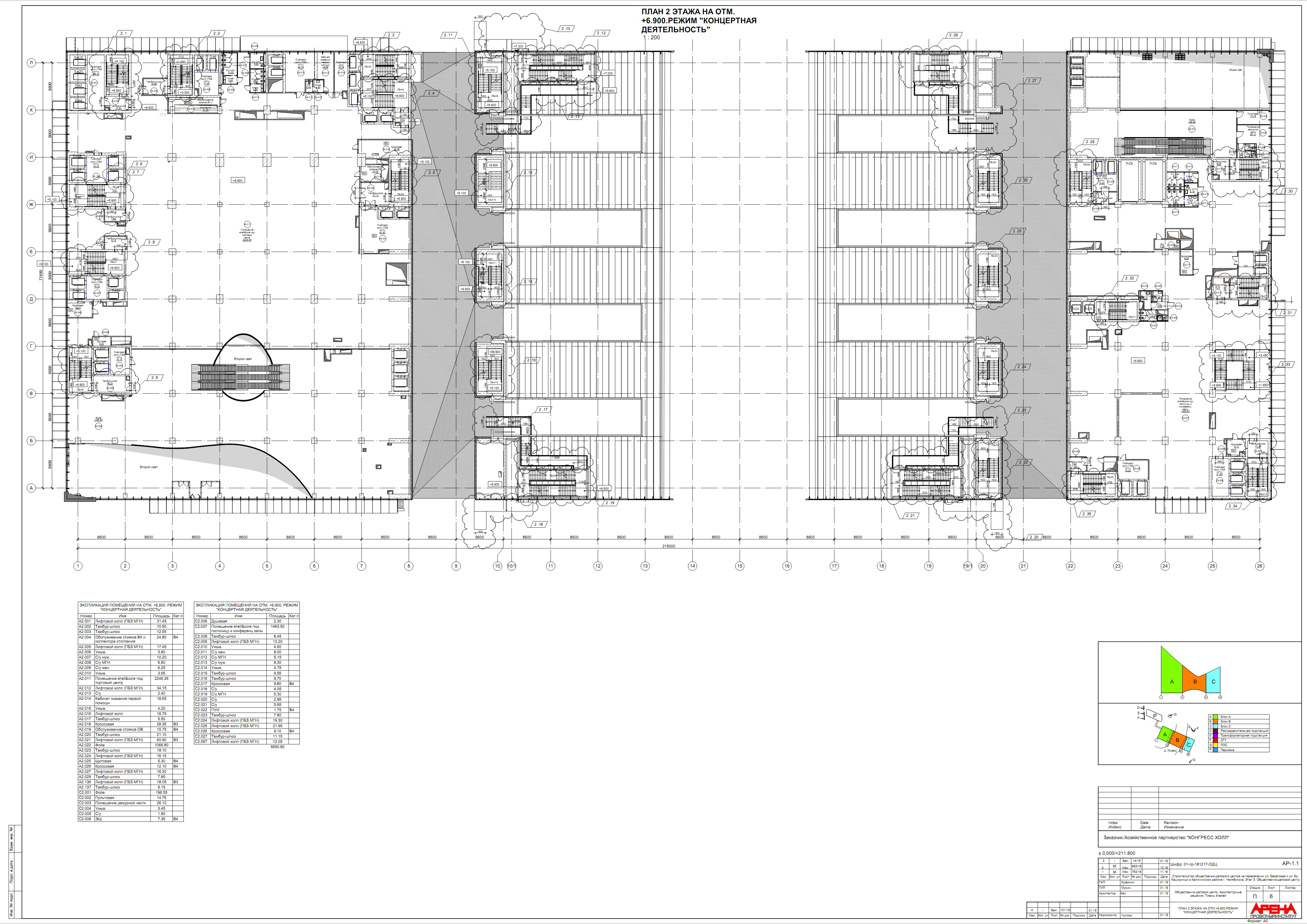
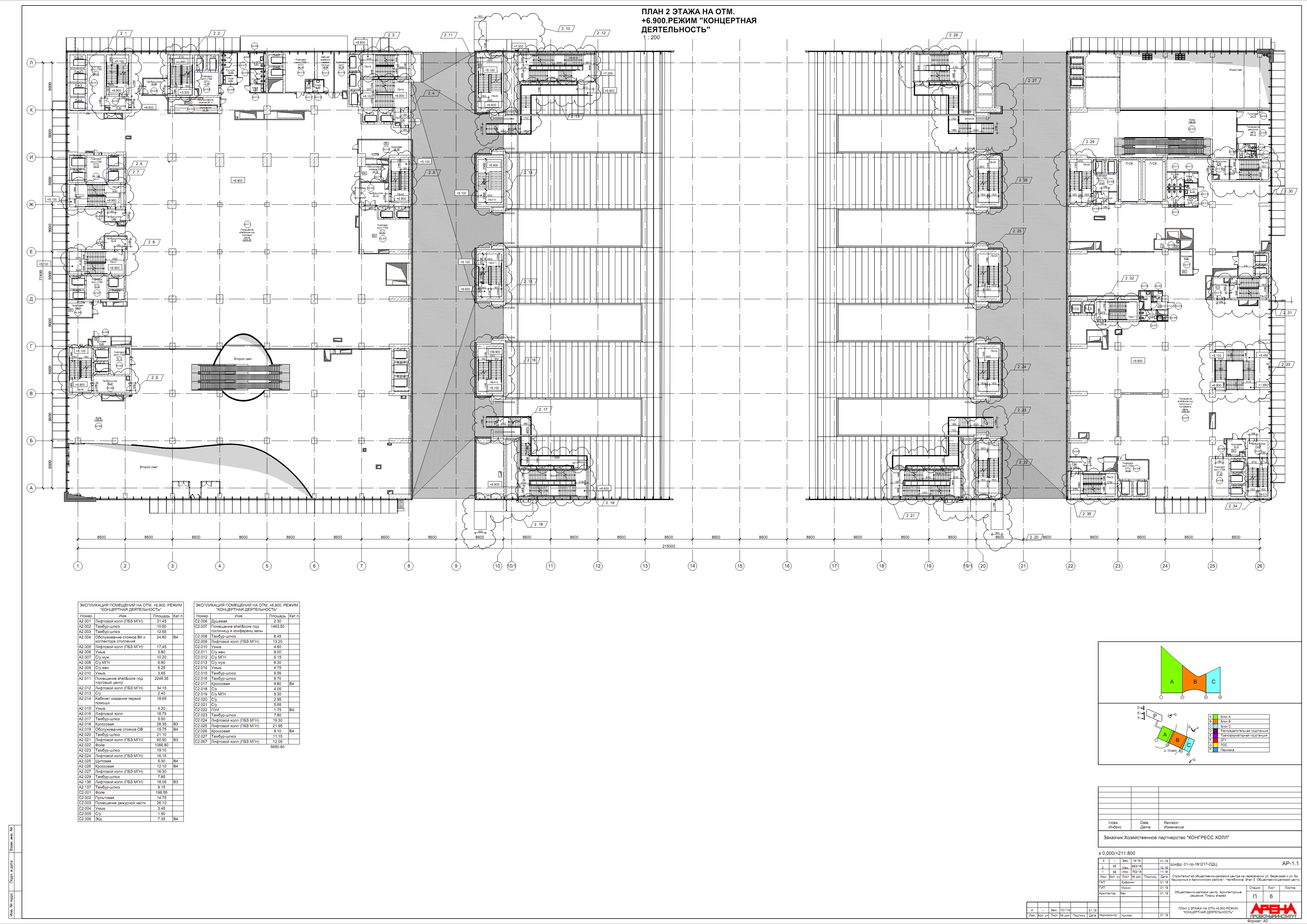
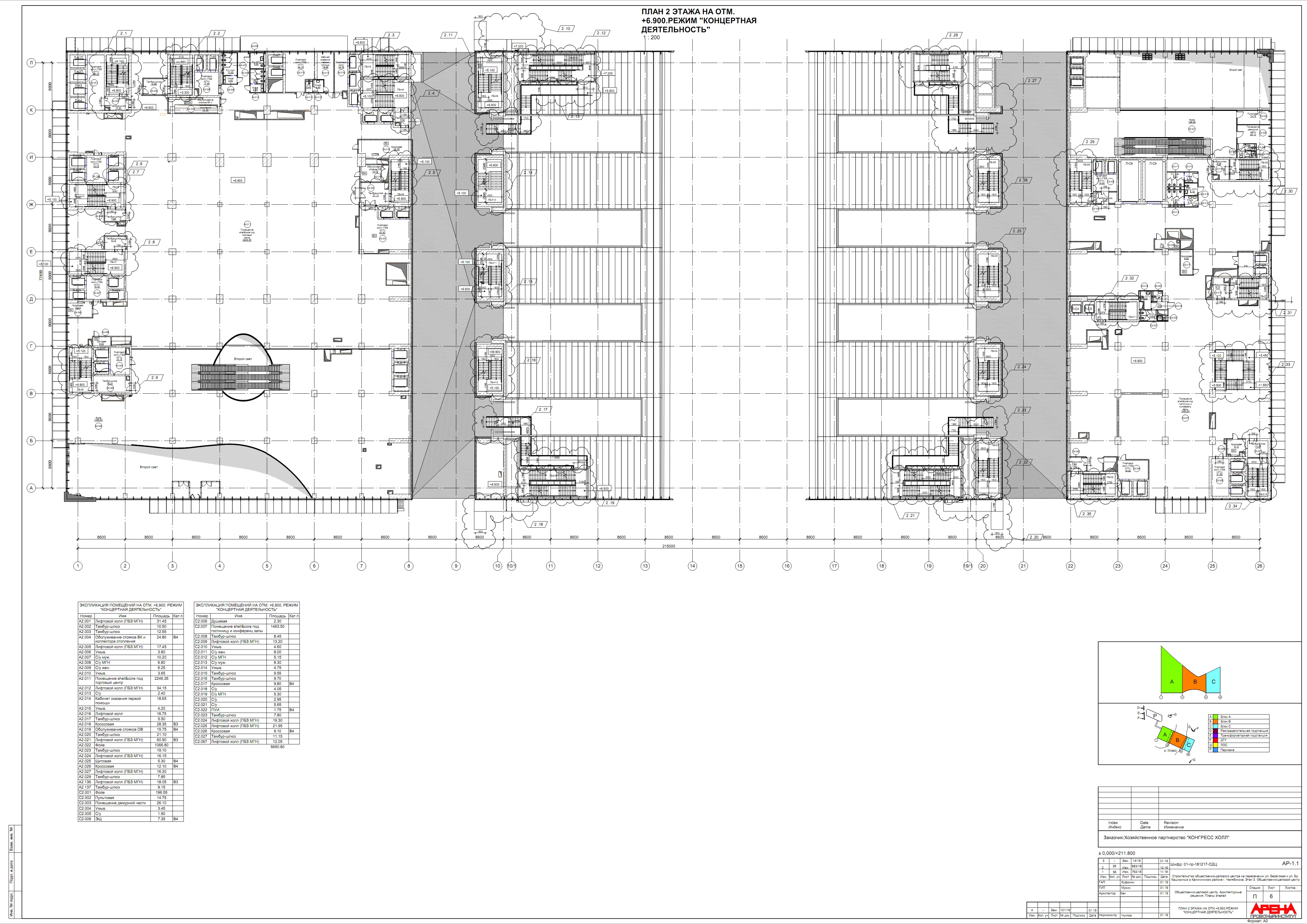
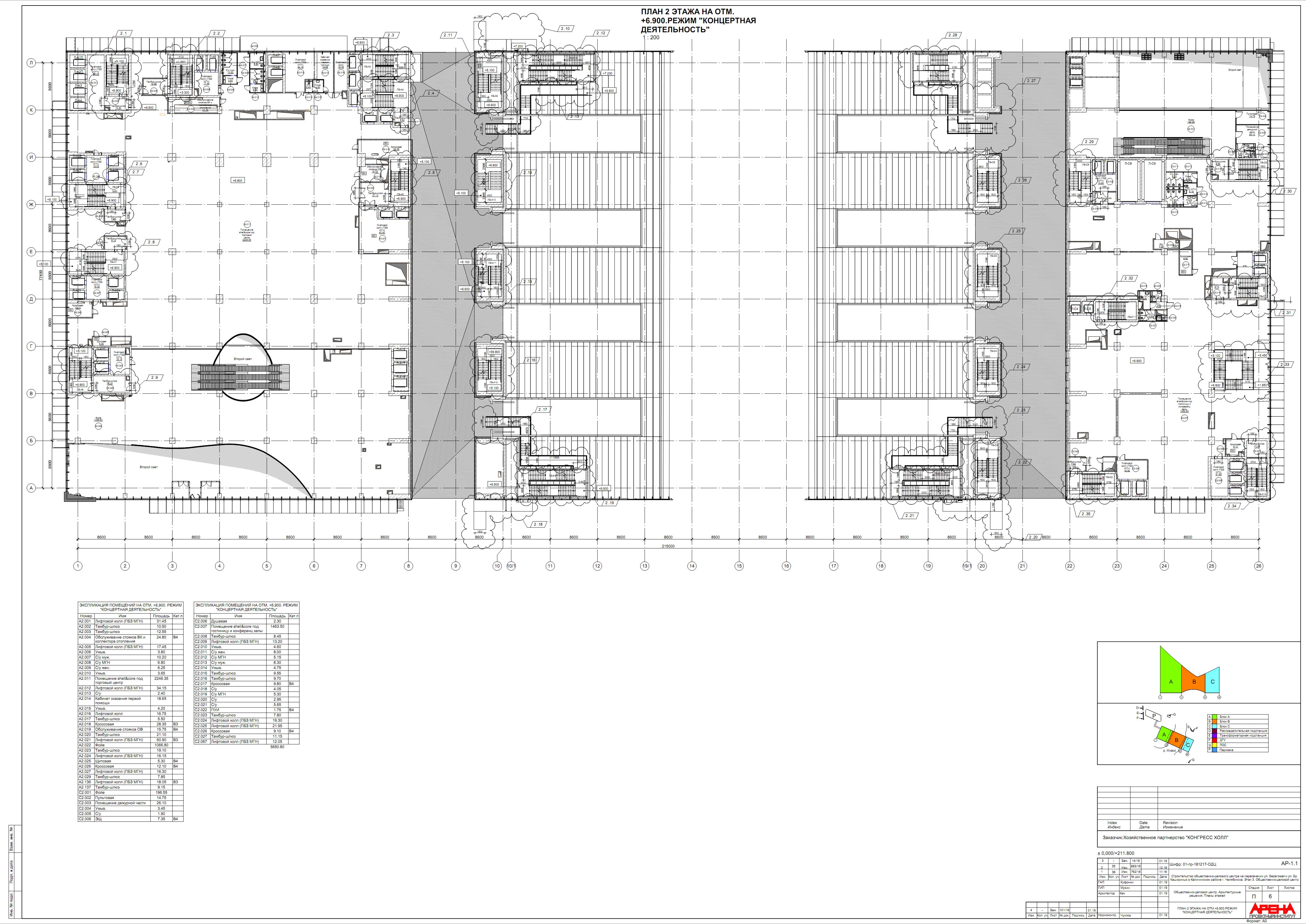
16. План 2 этажа
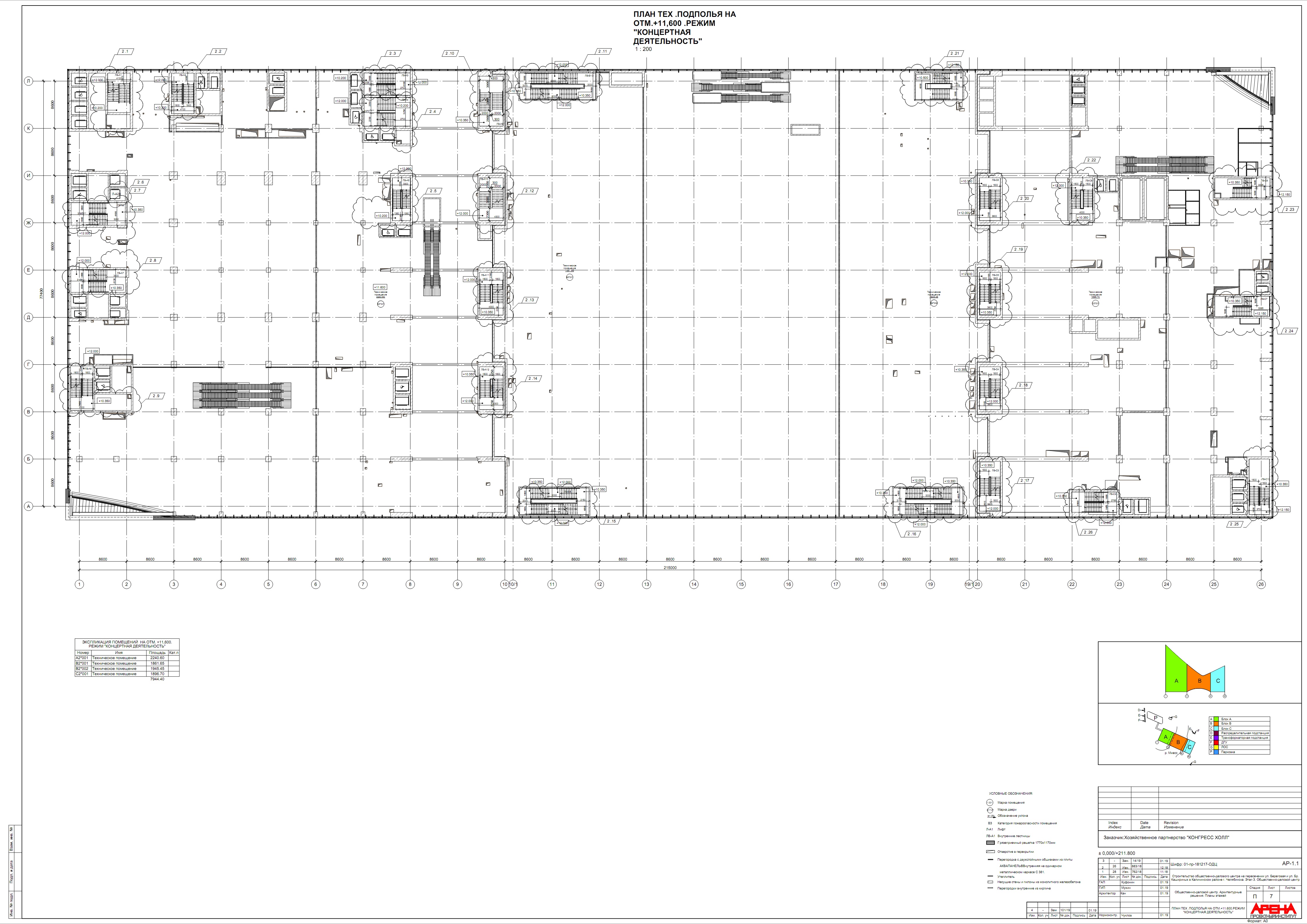
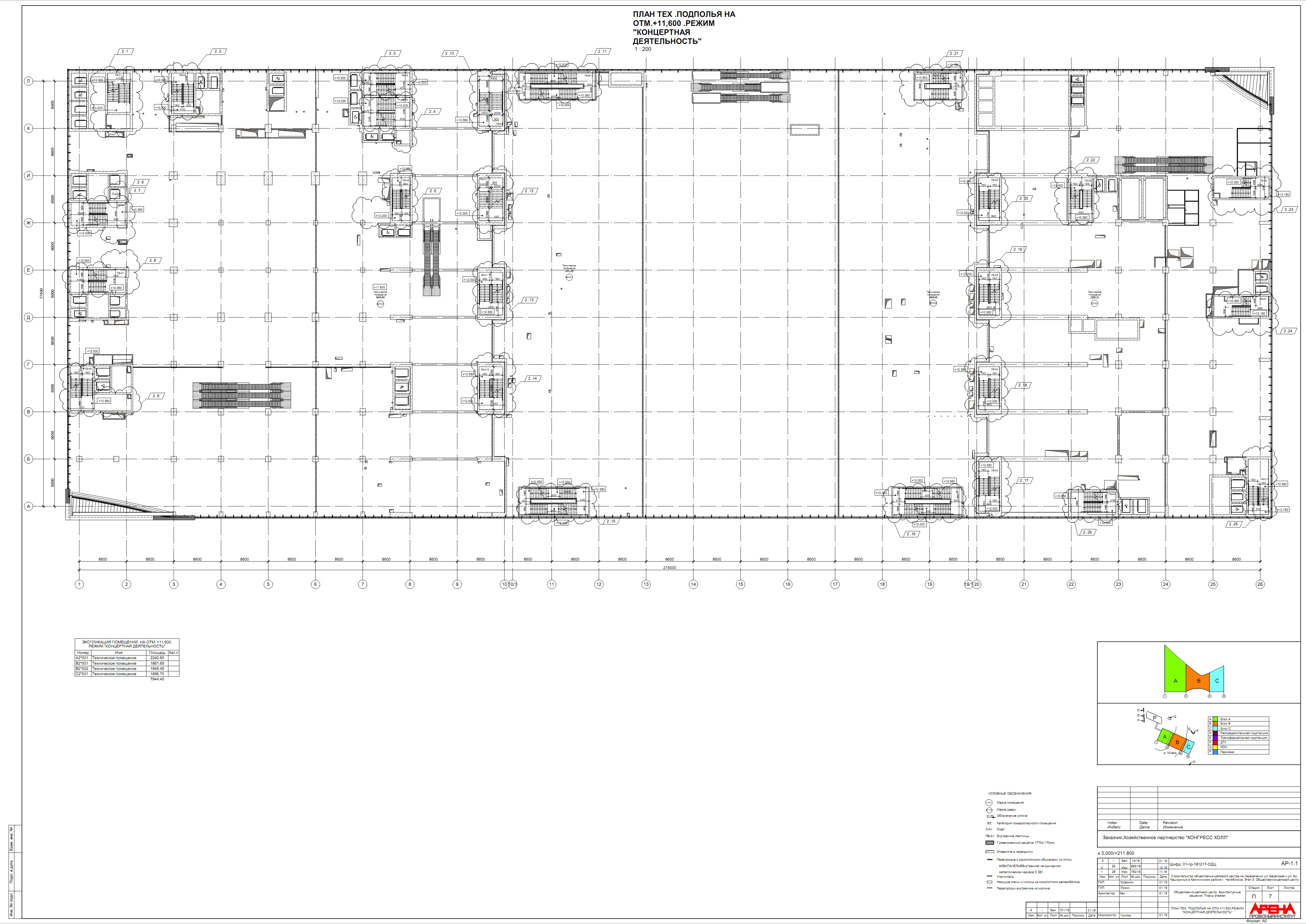
17. План тех.подполья
18. План 3 этажа
19. Фрагмент плана 3+
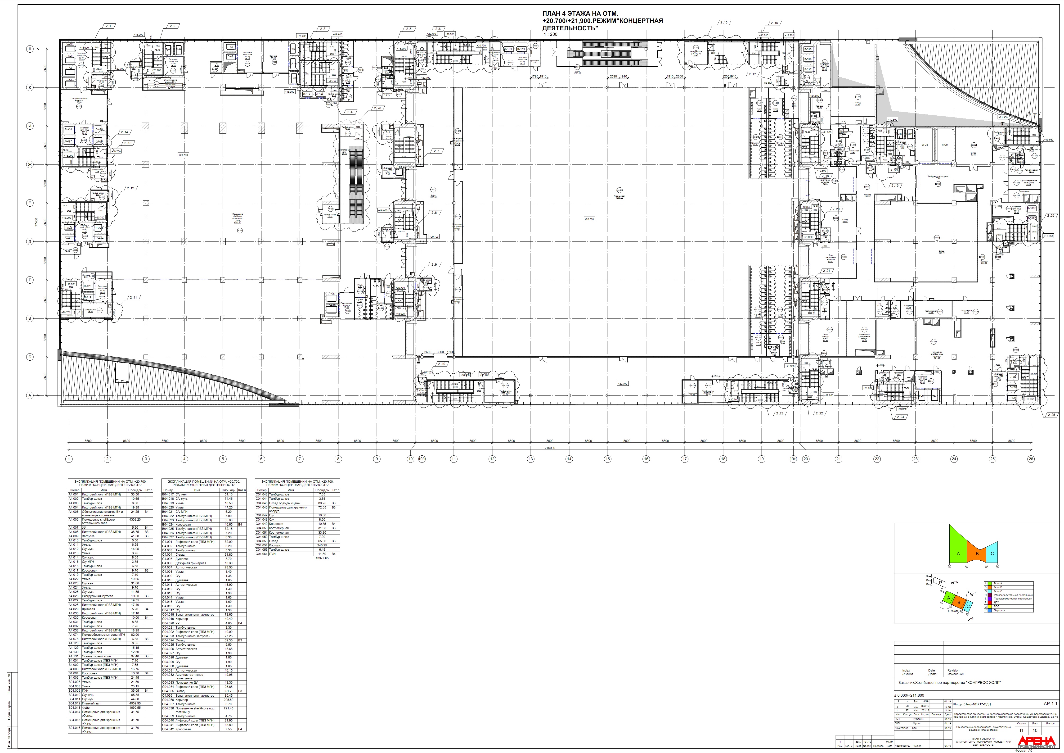
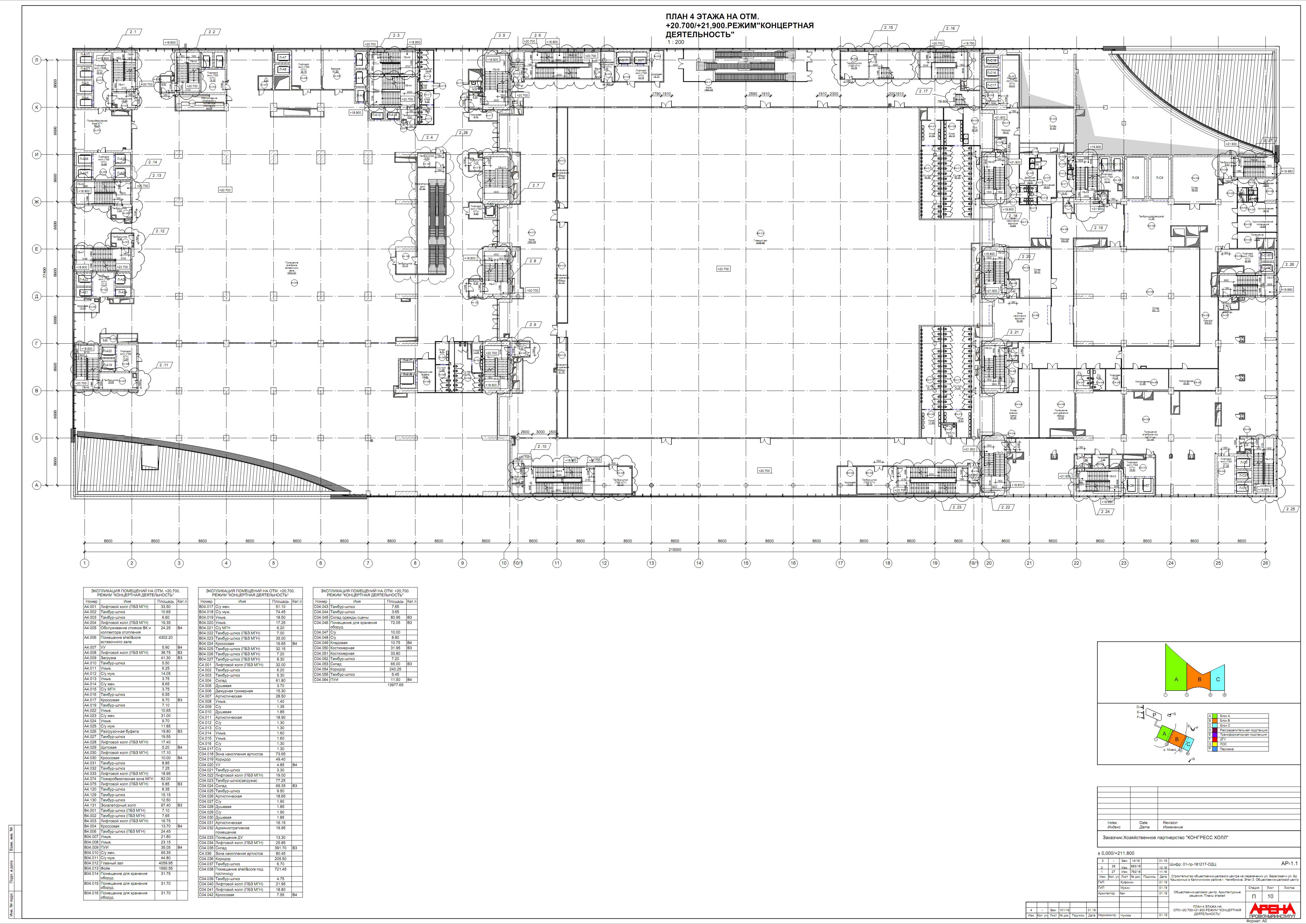
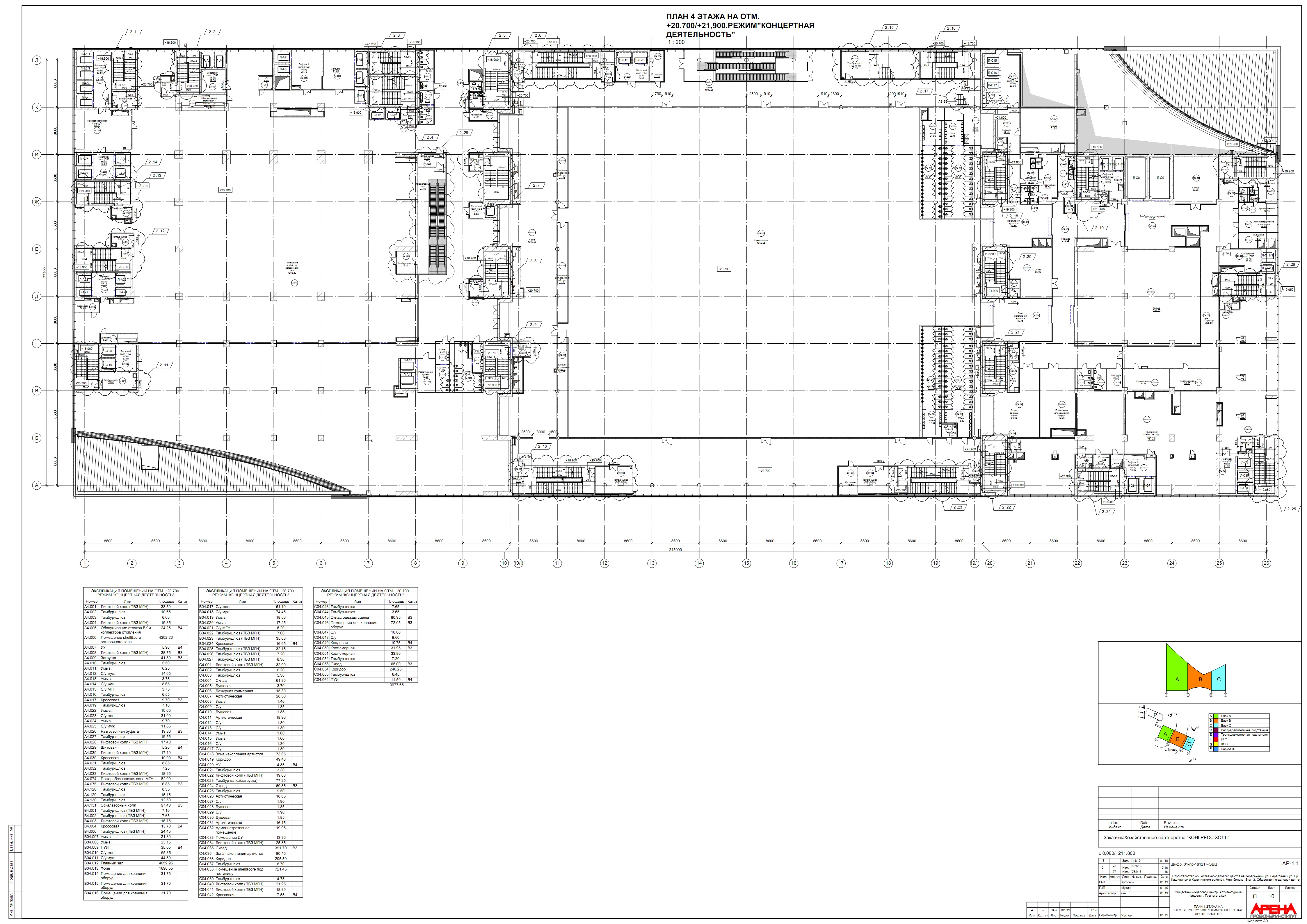
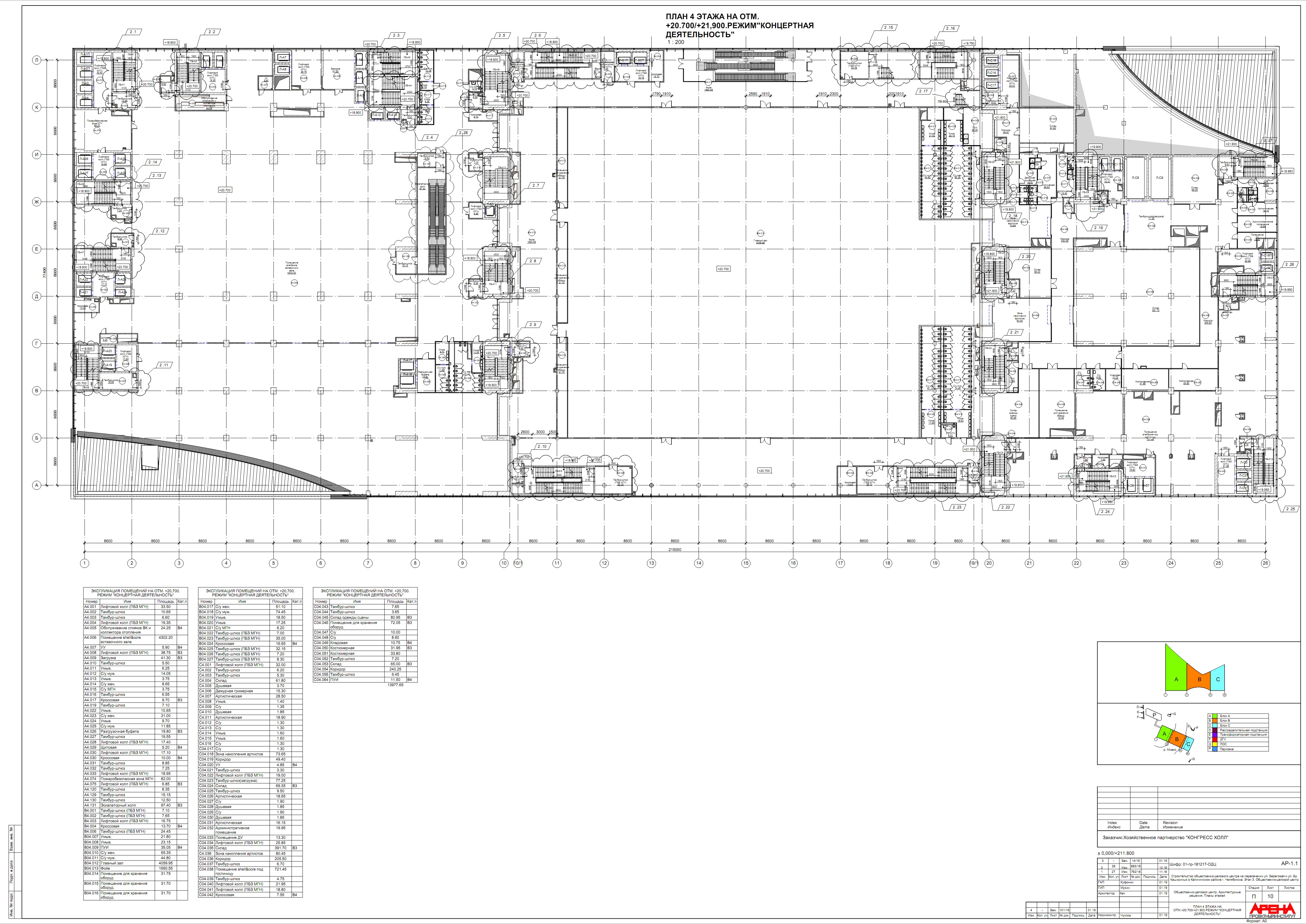
20. План 4 этажа
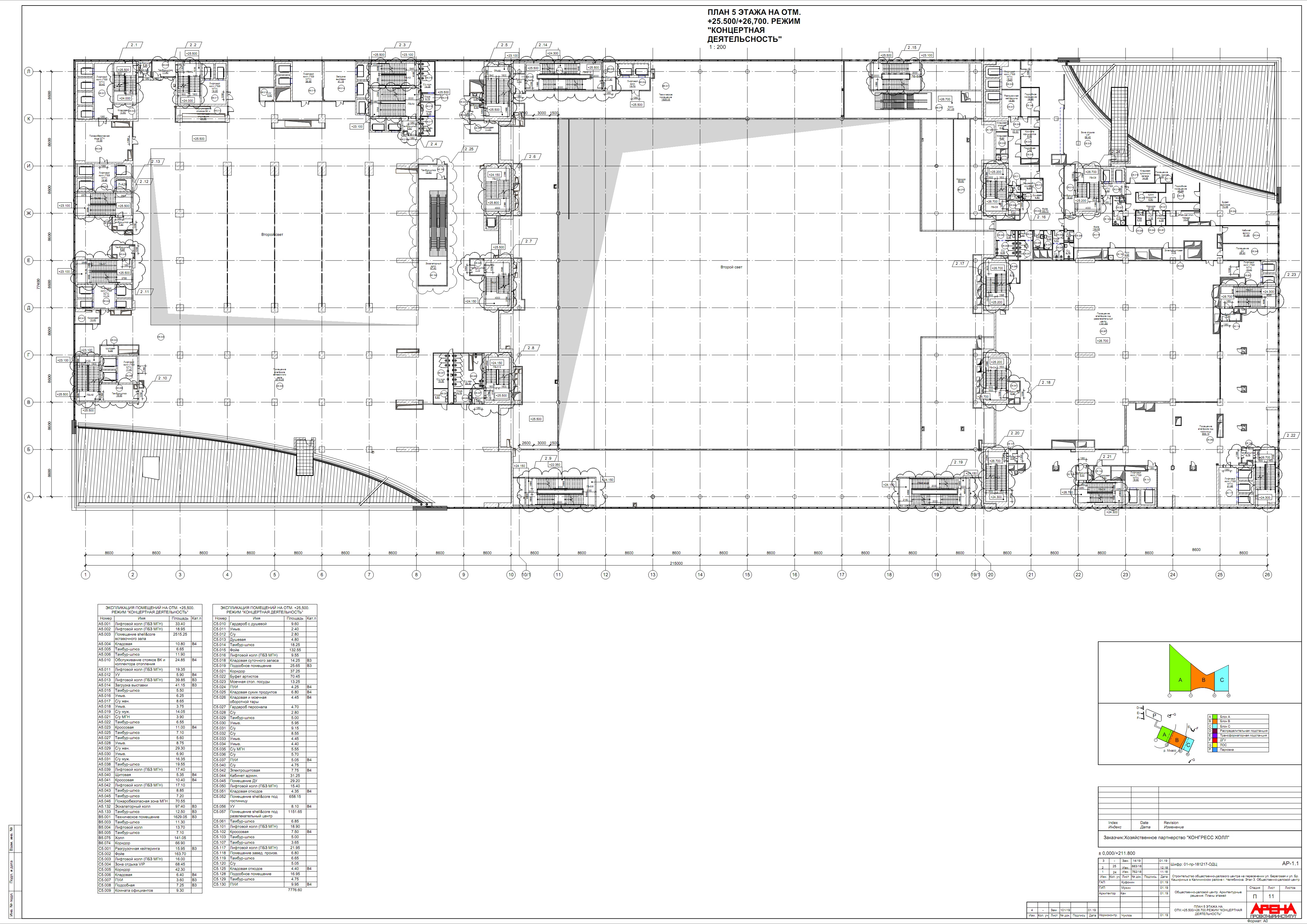
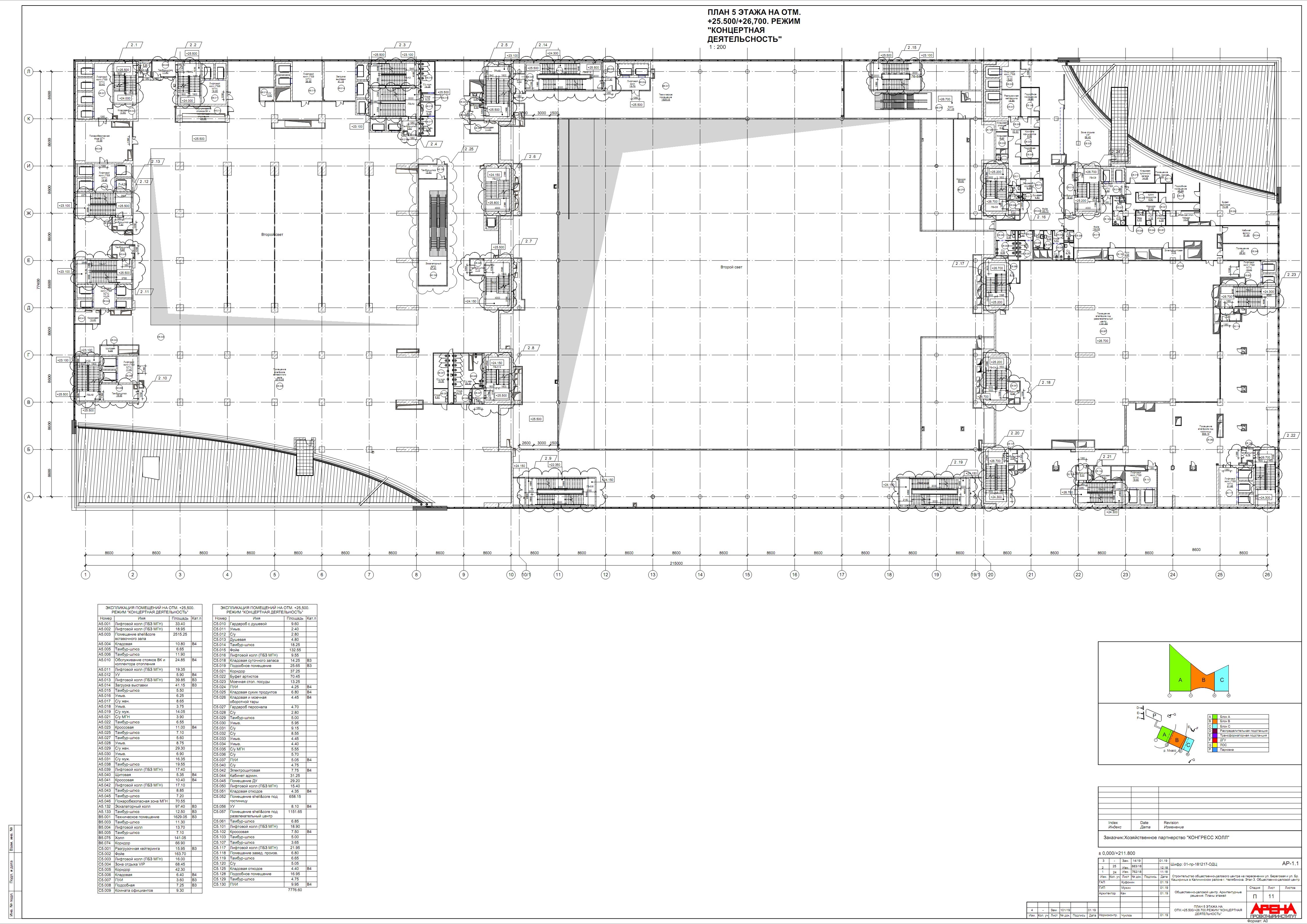
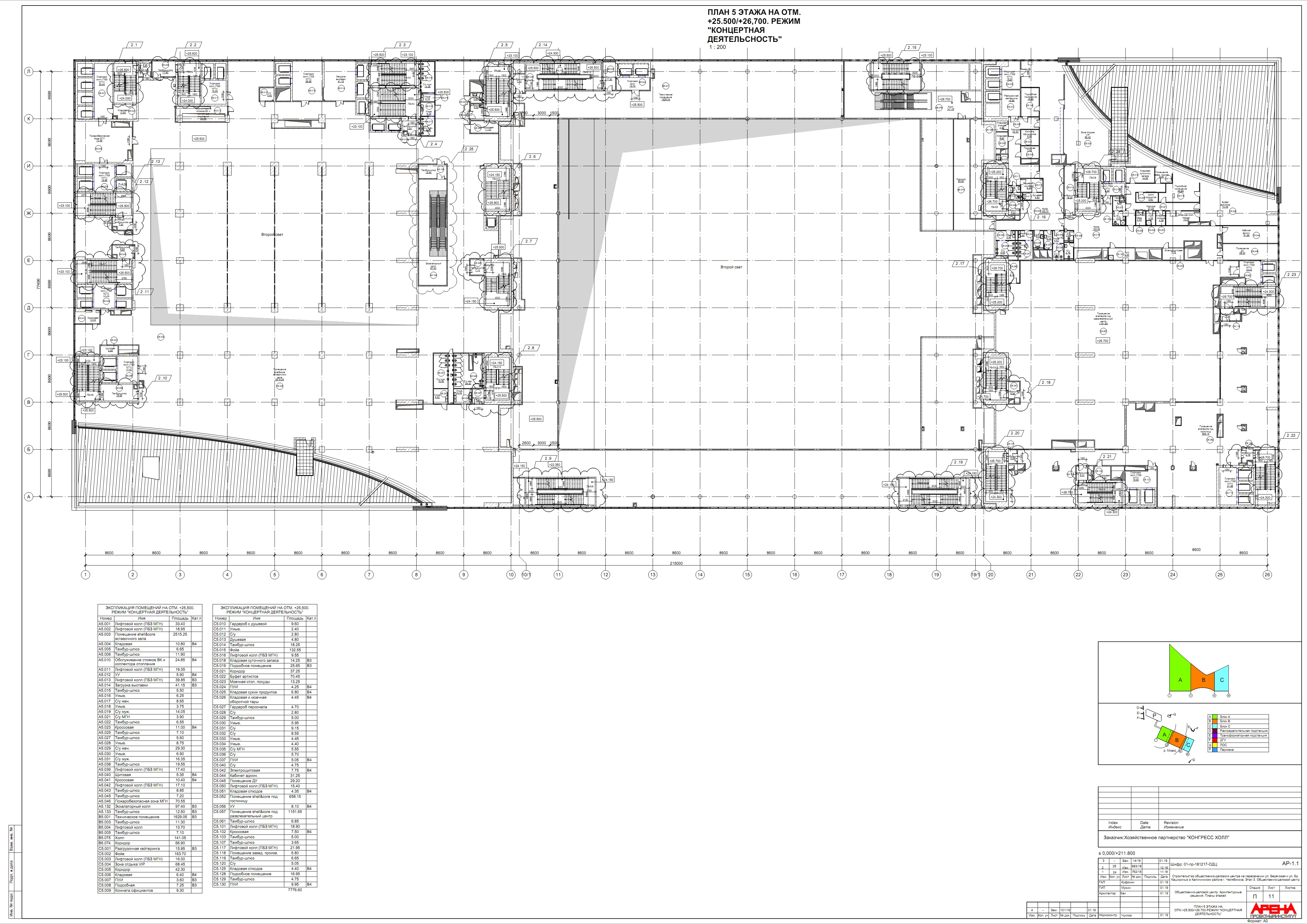
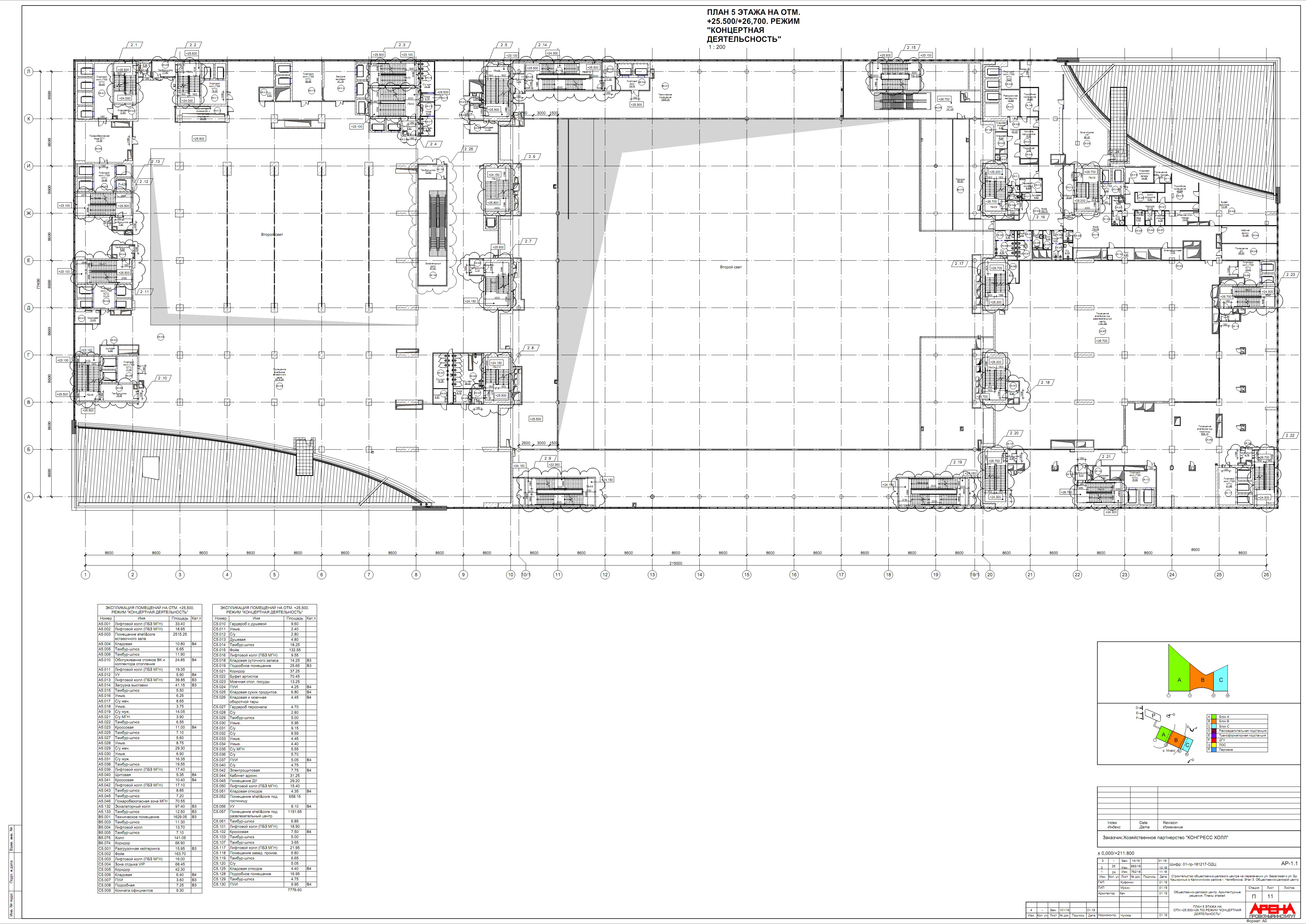
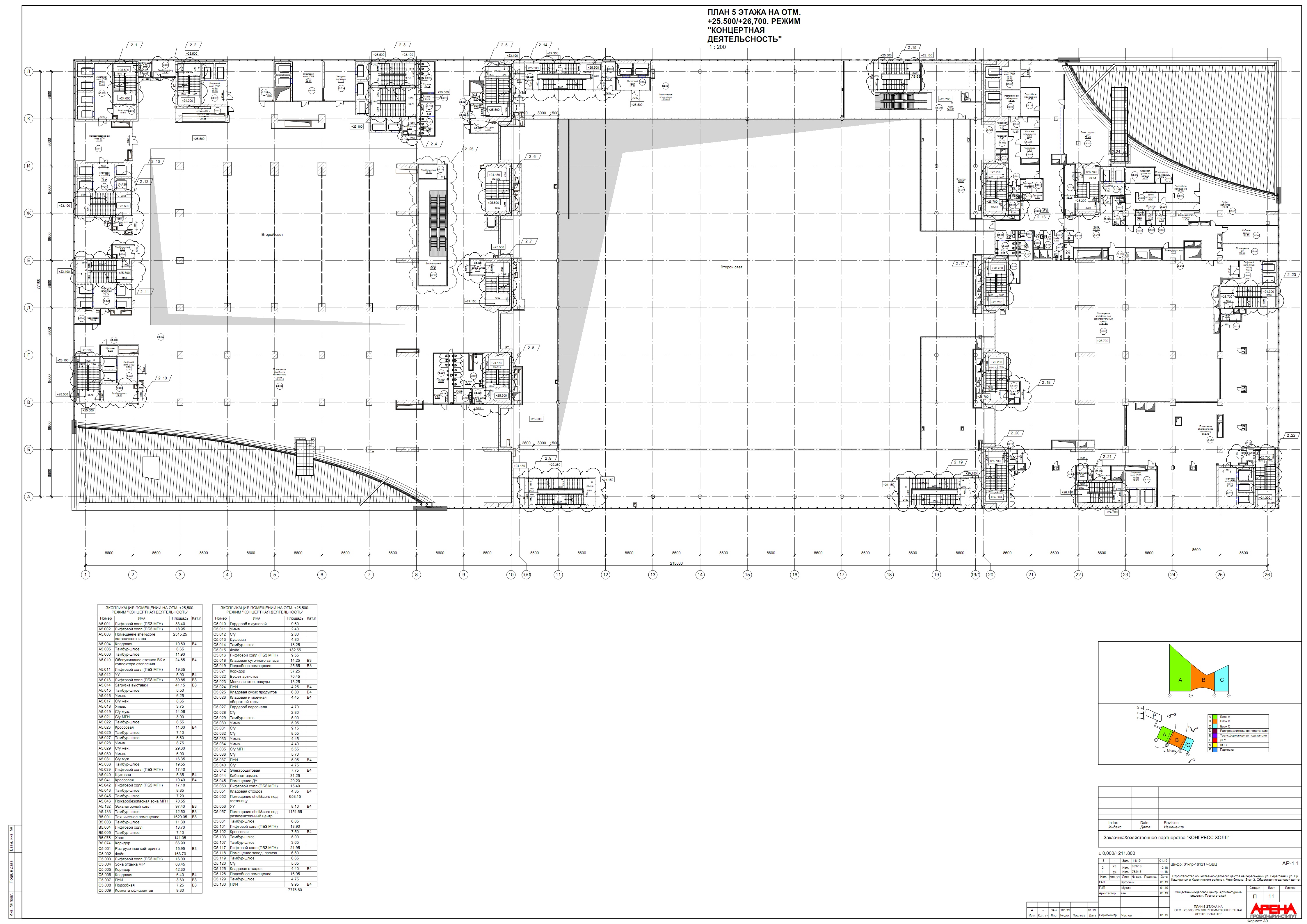
21. План 5 этажа
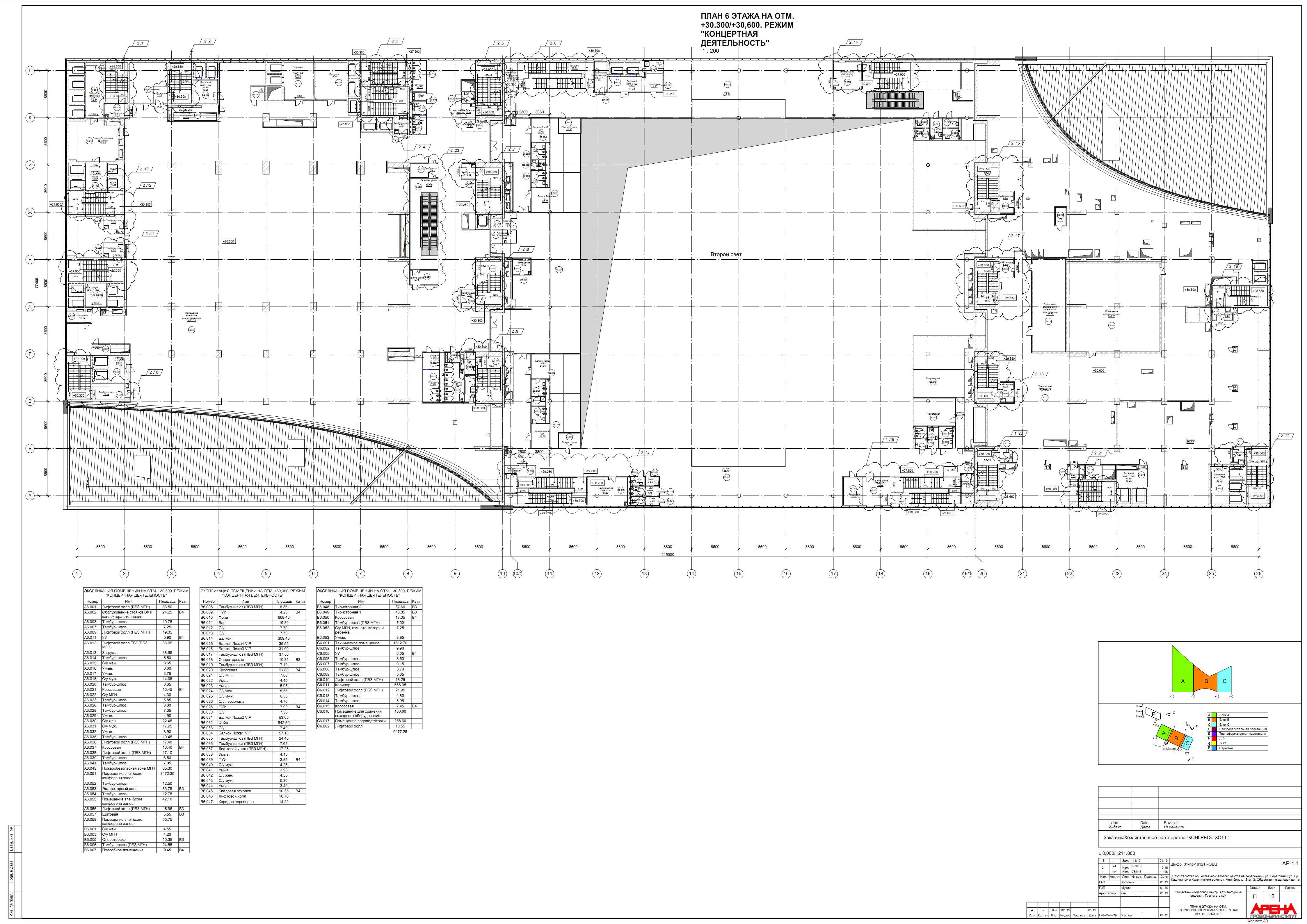
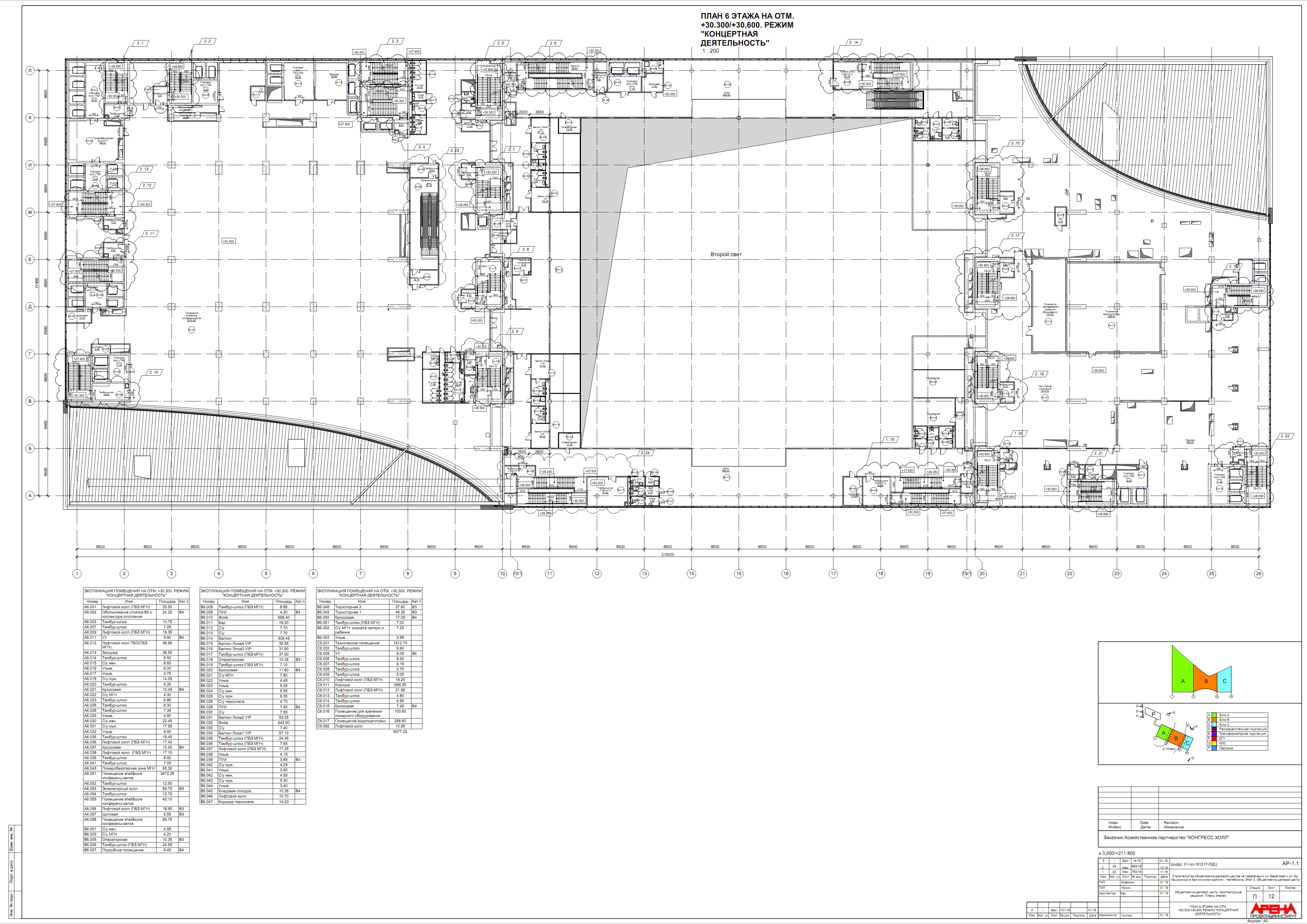
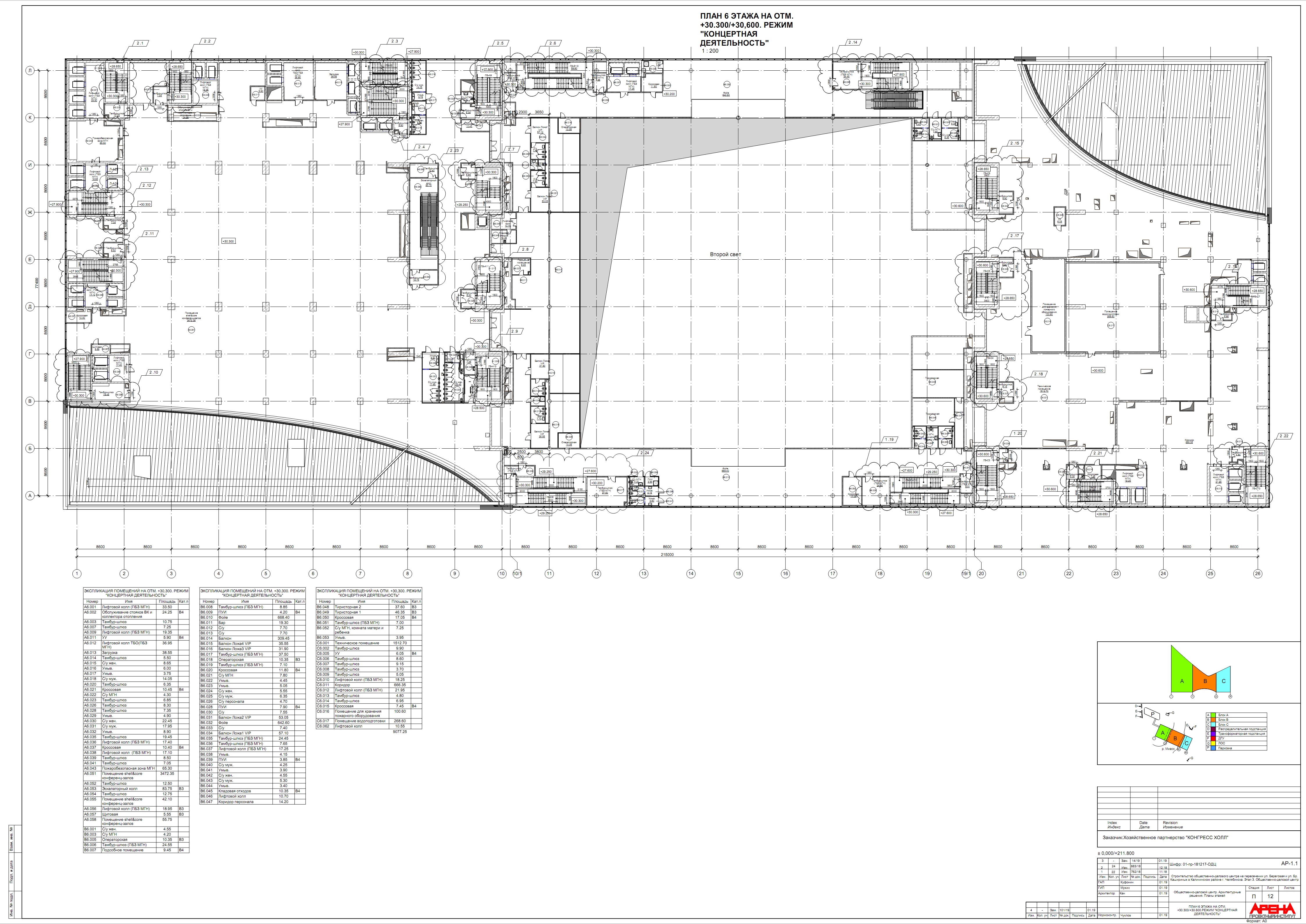
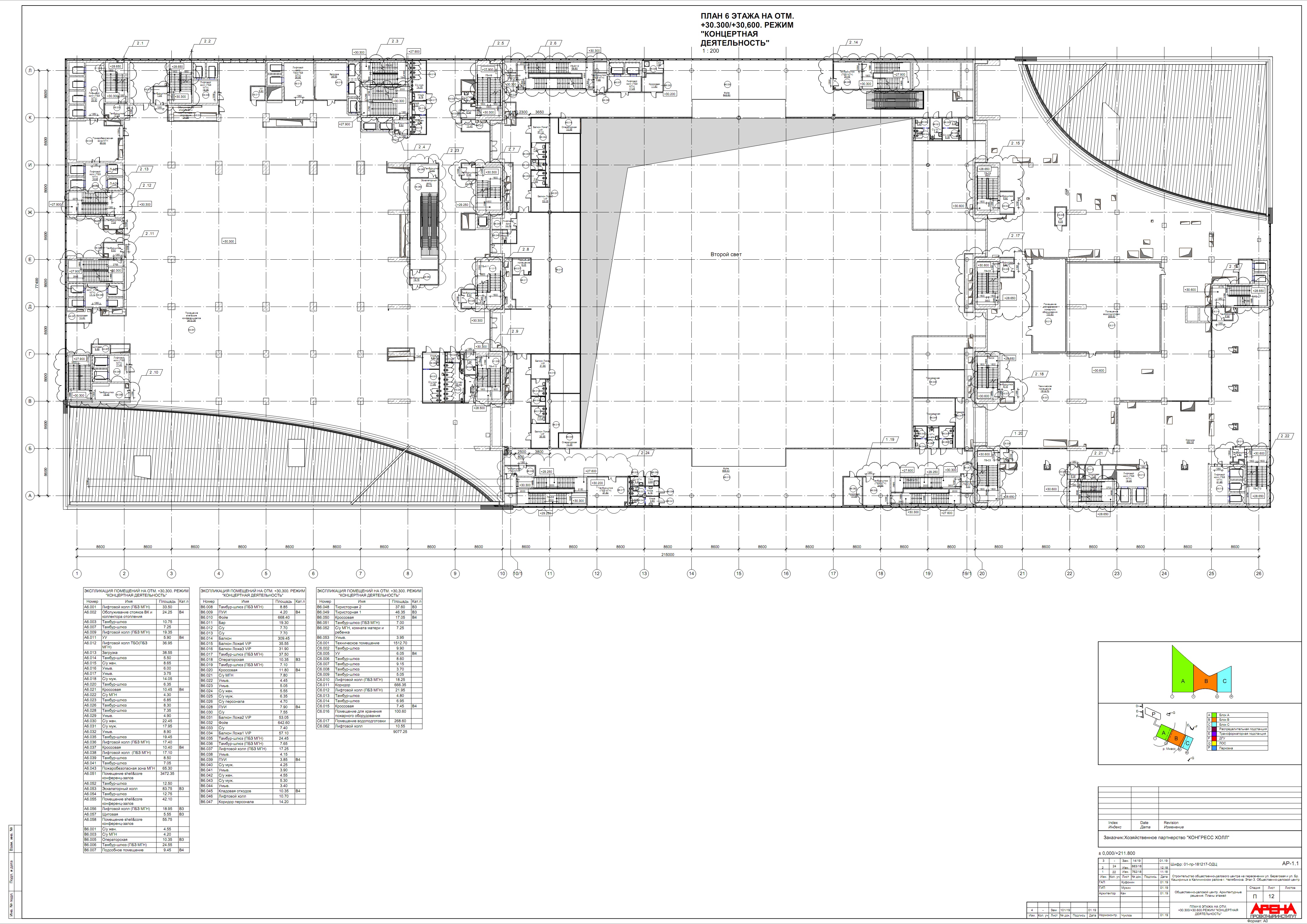
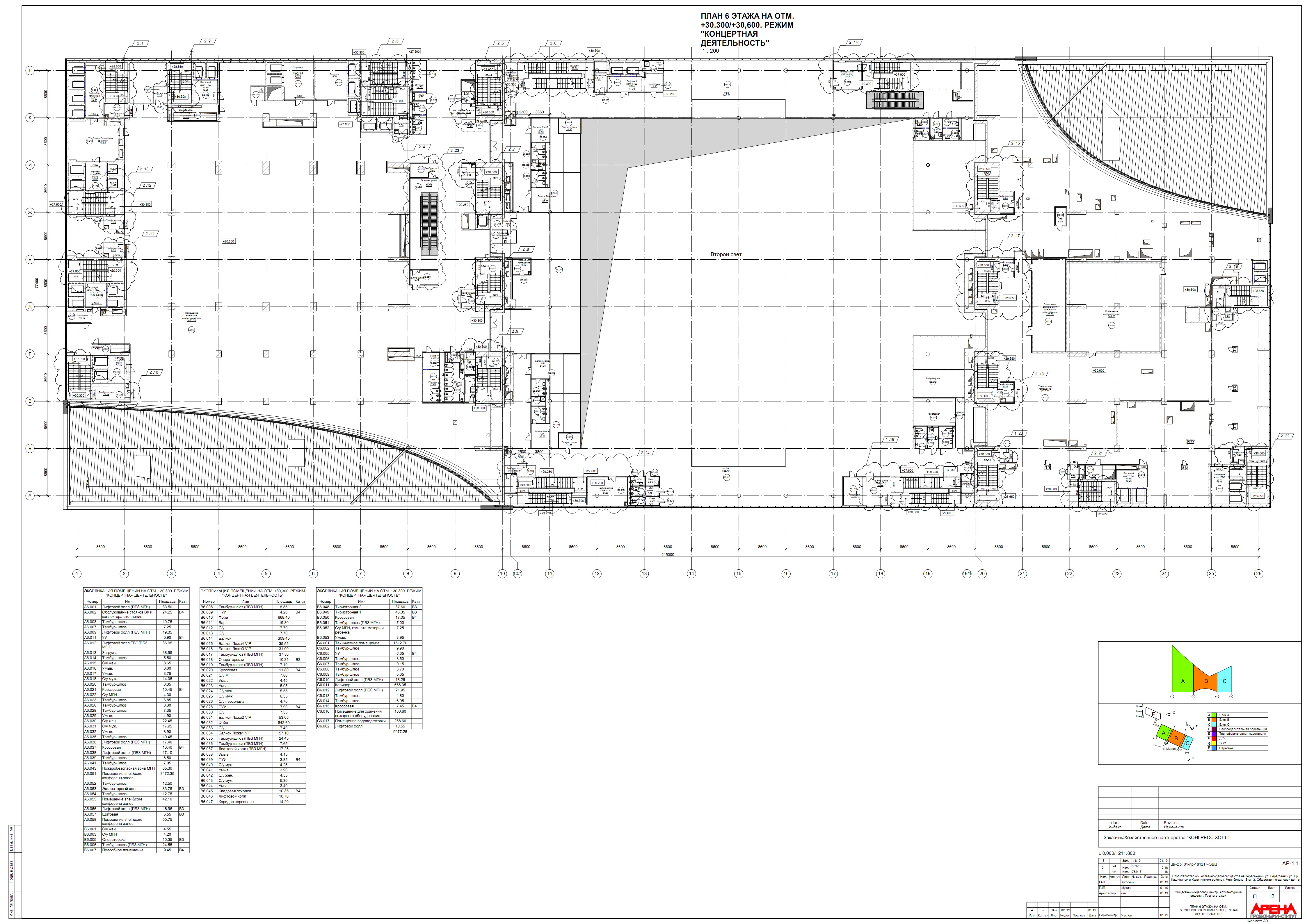
22. План 6 этажа
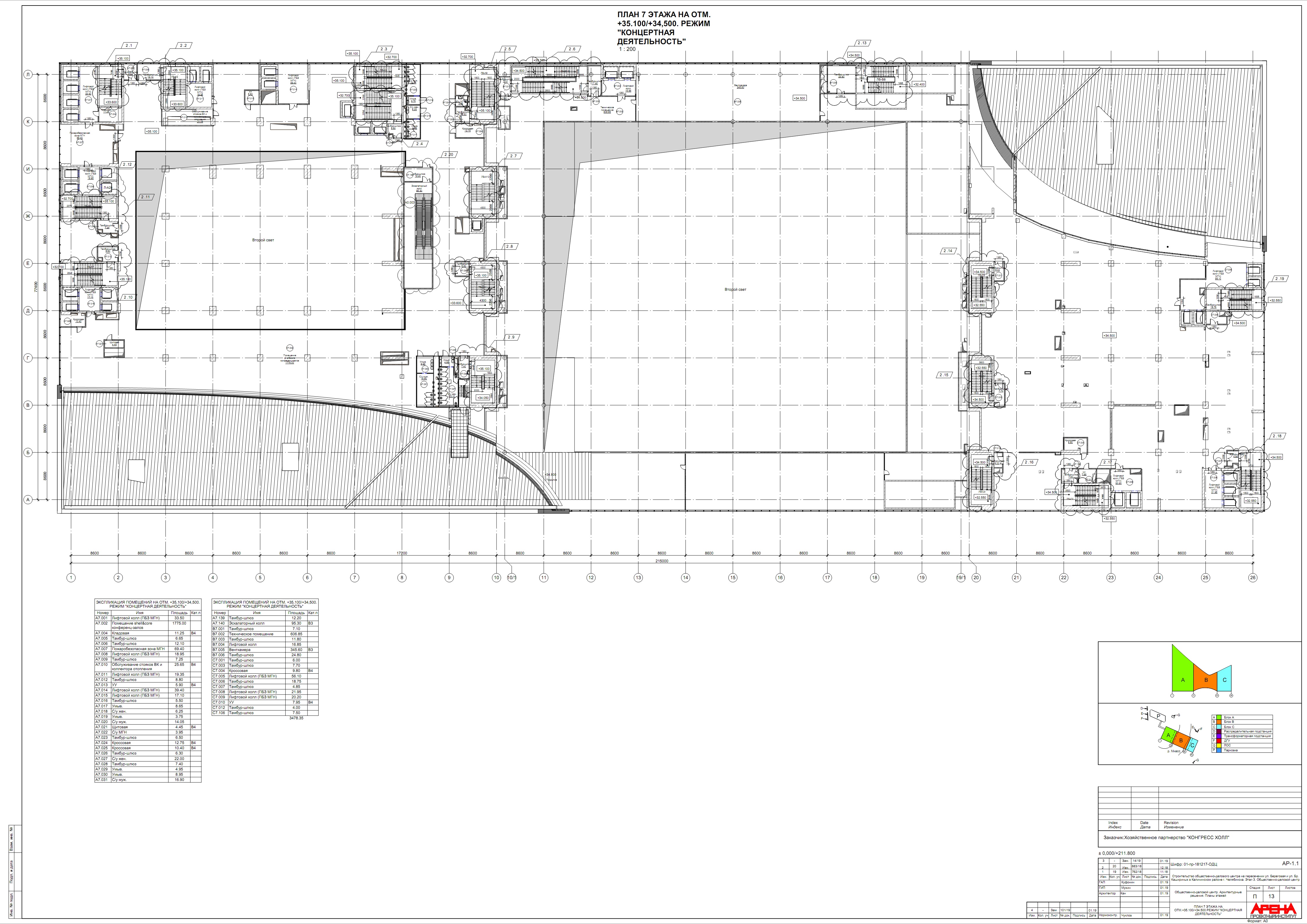
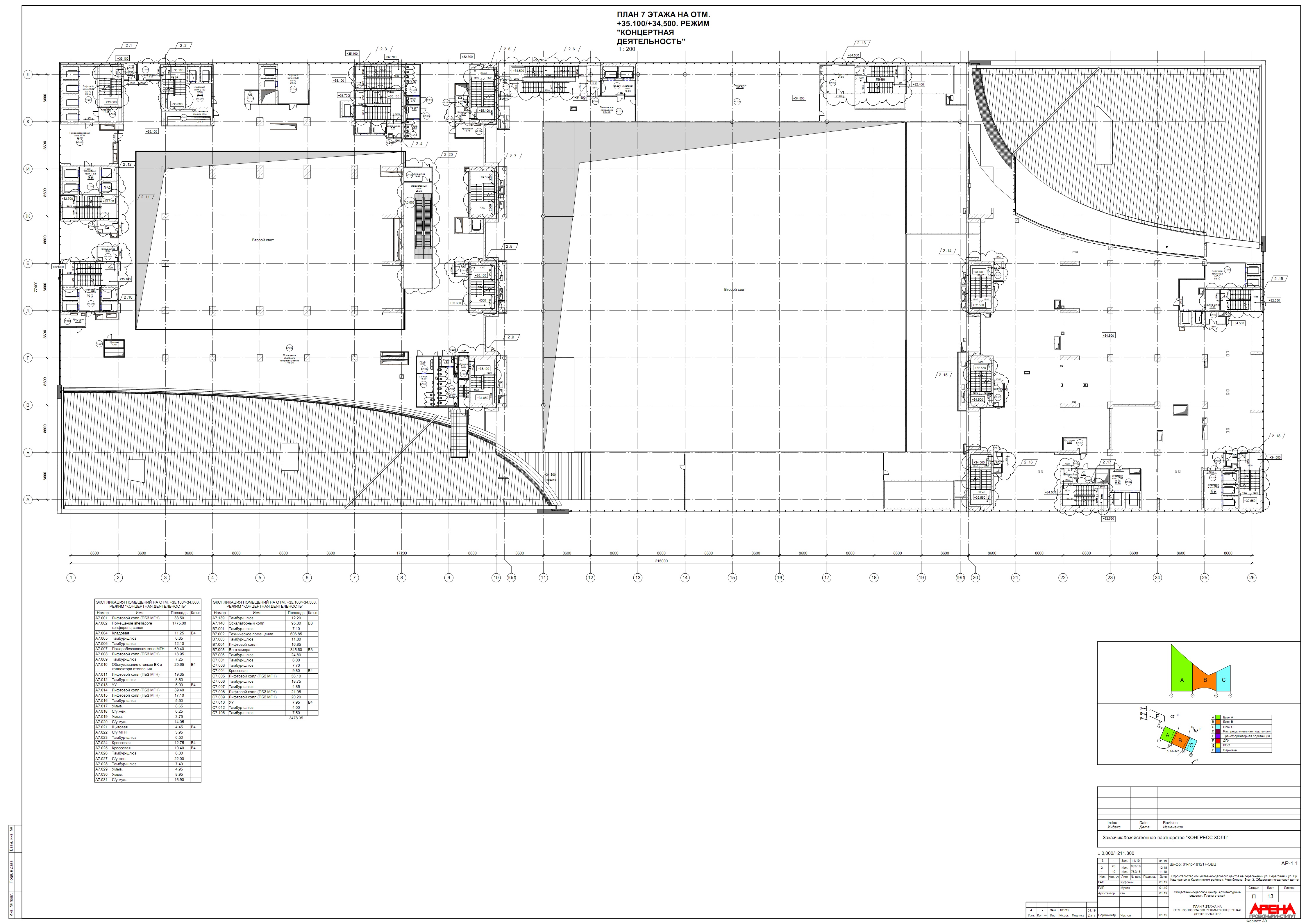
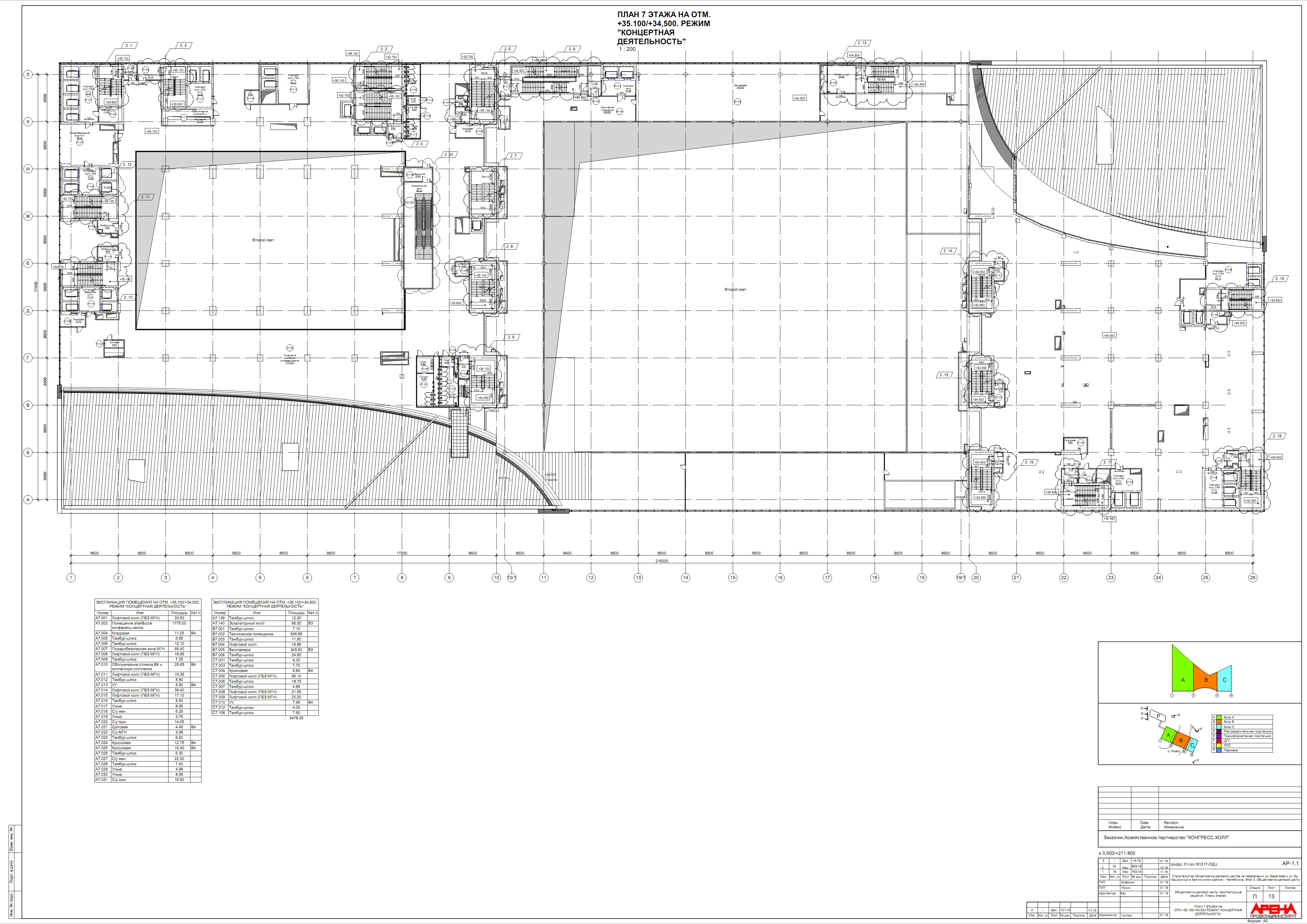
23. План 7 этажа
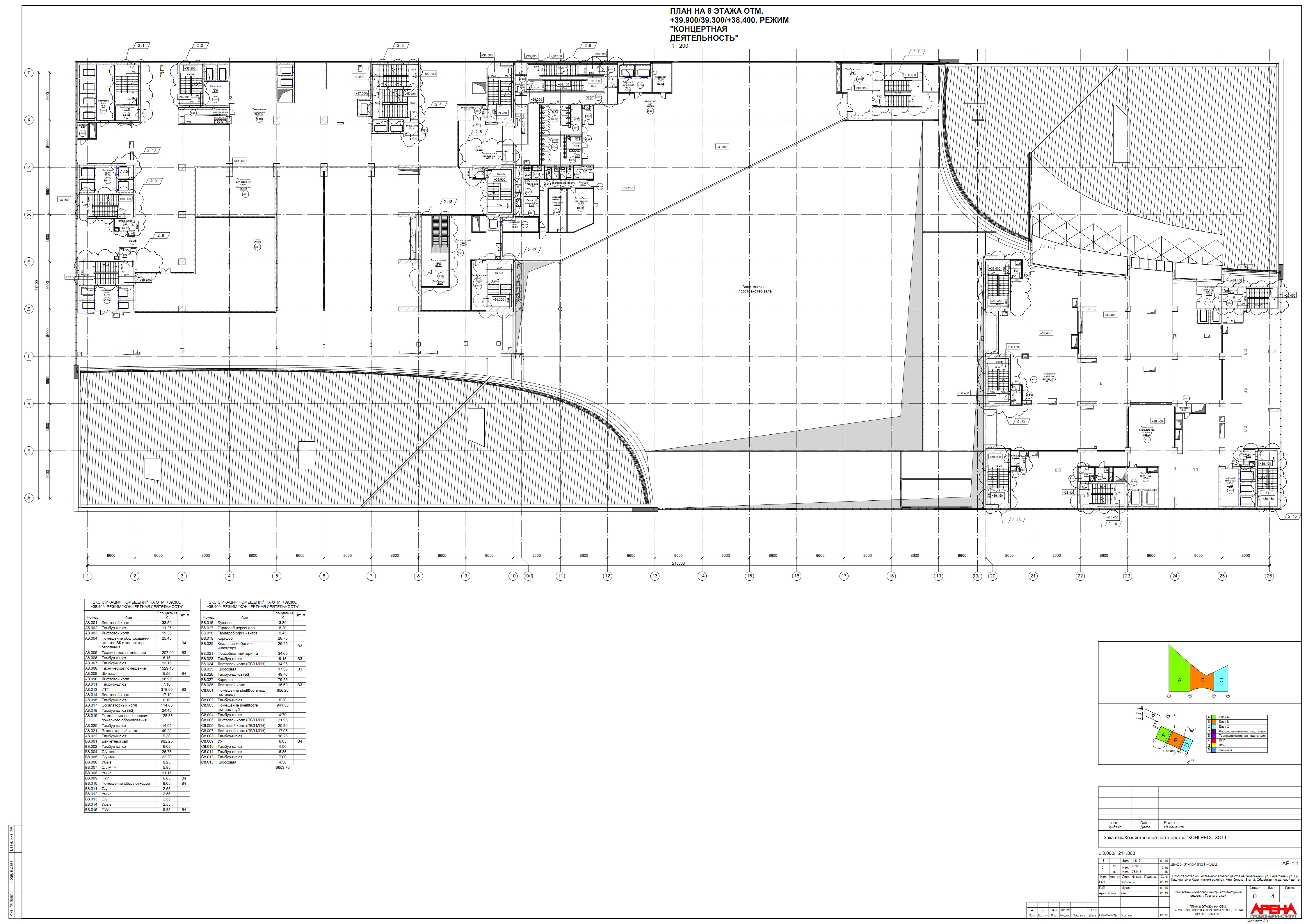
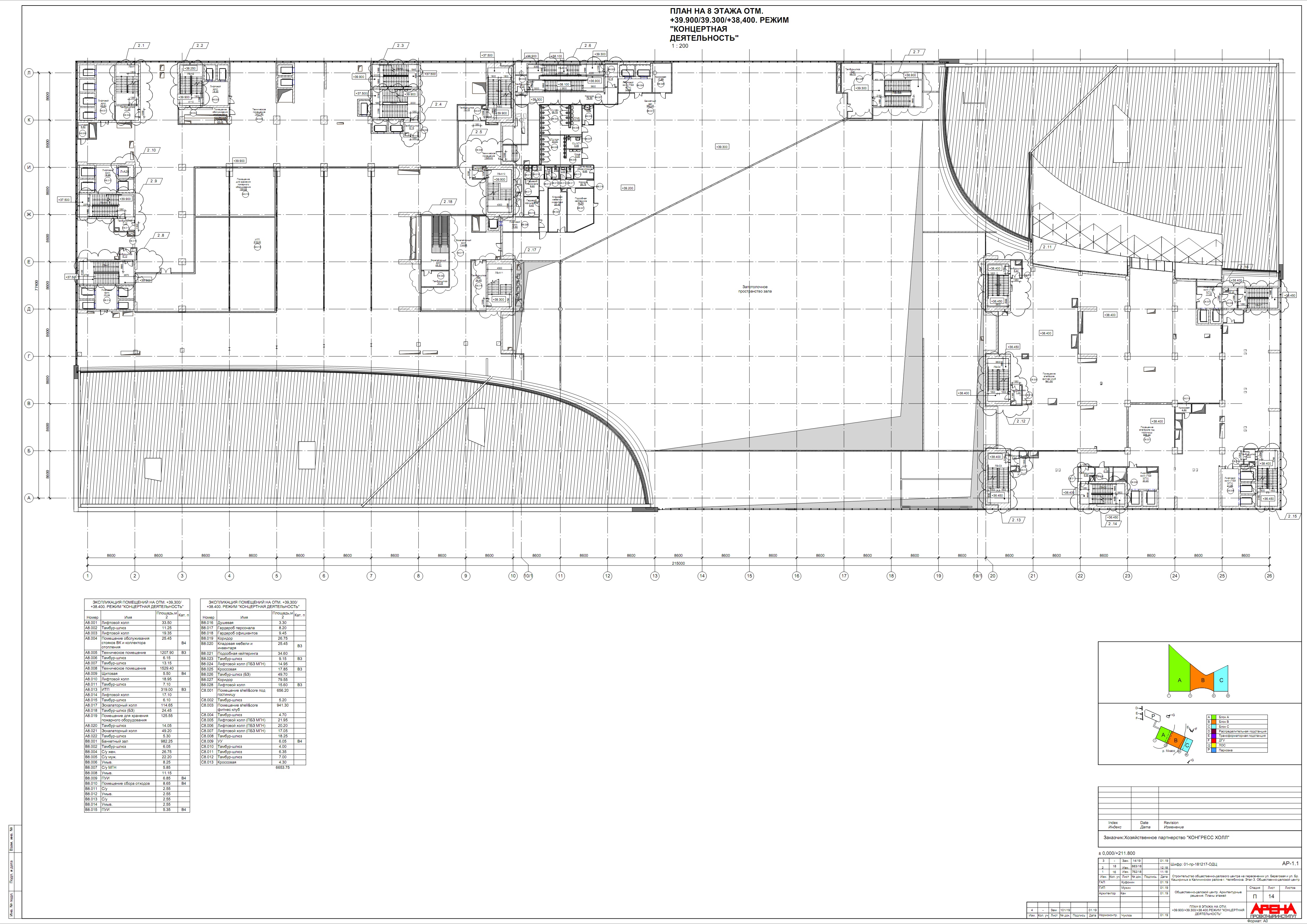
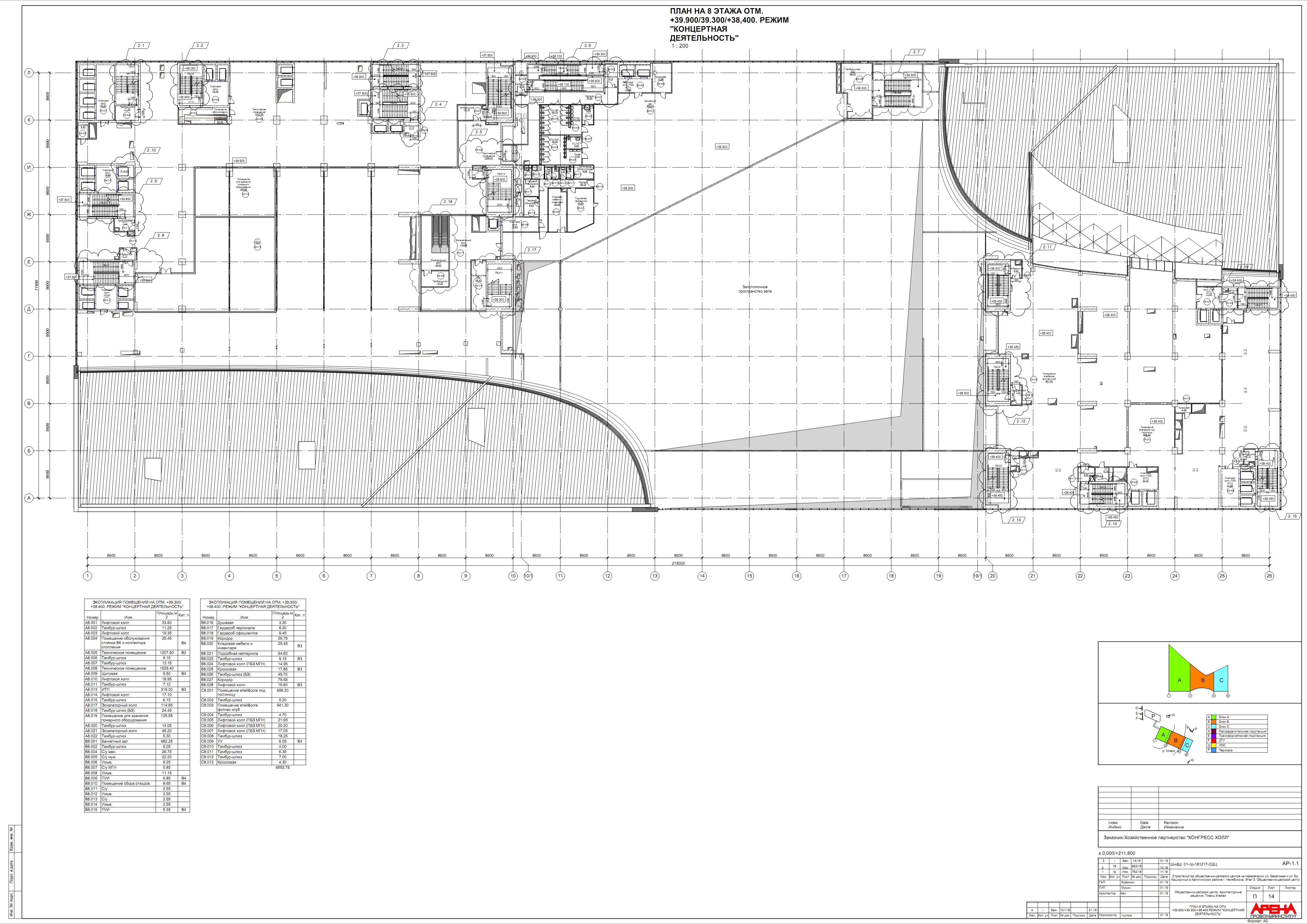
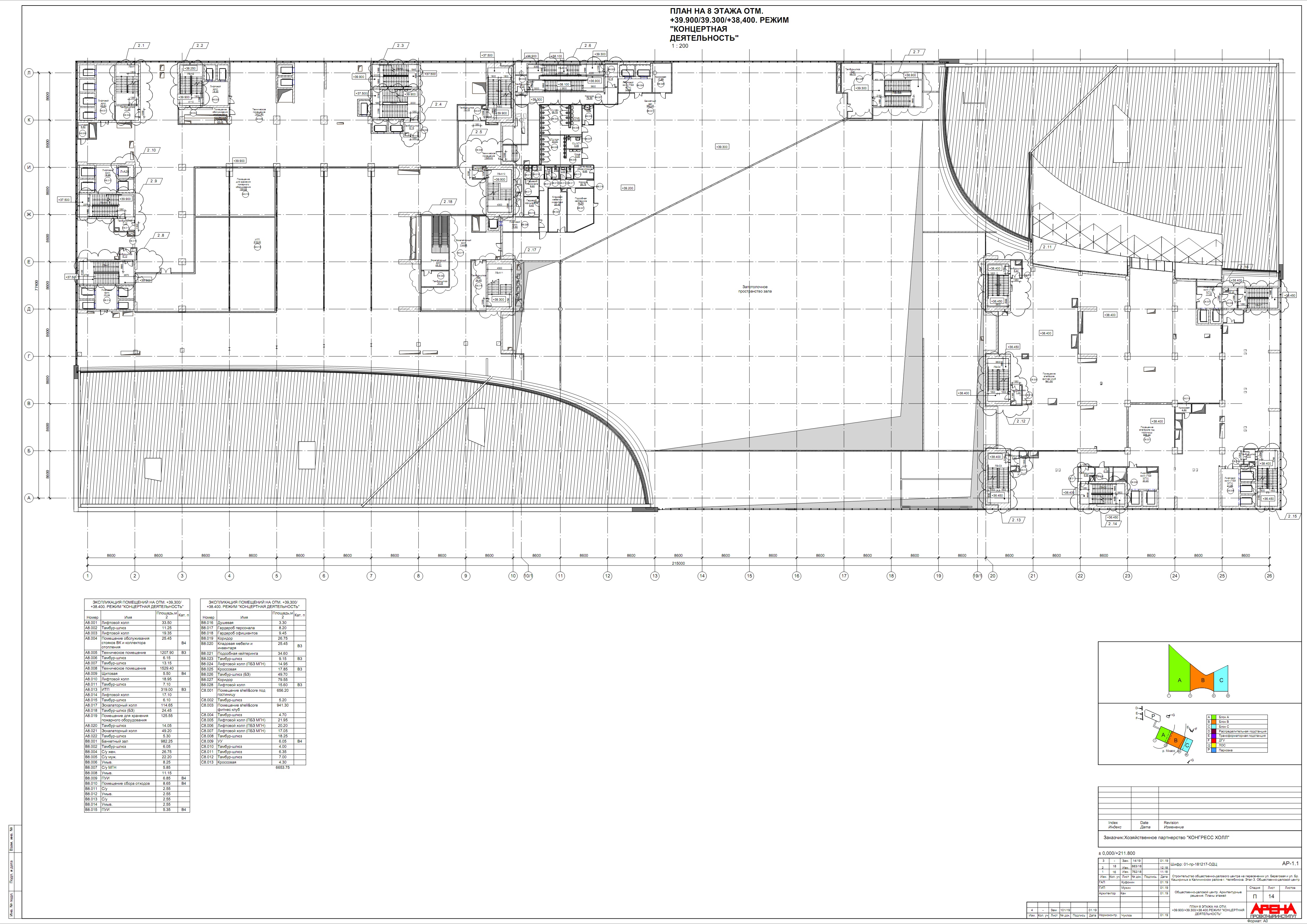
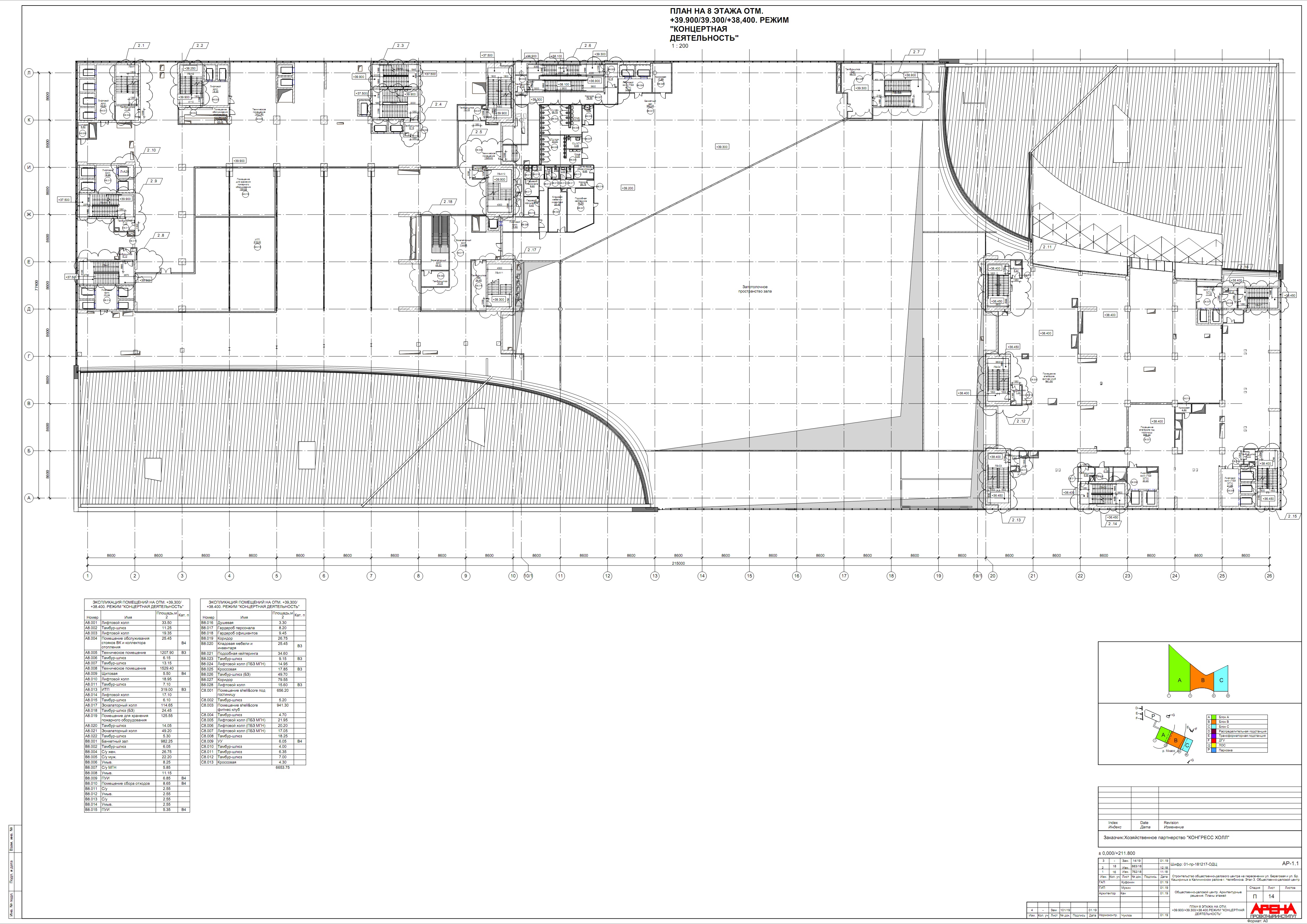
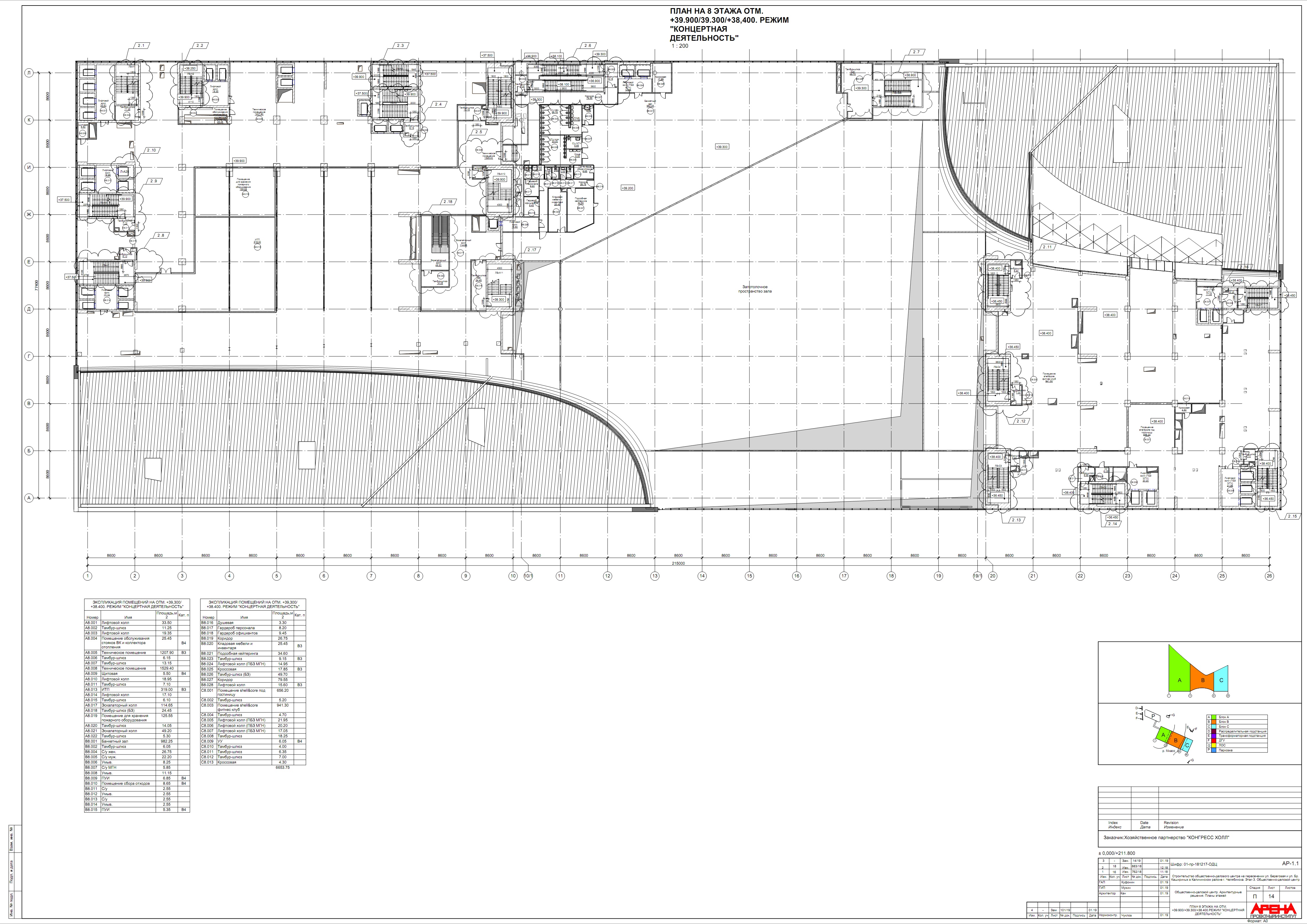
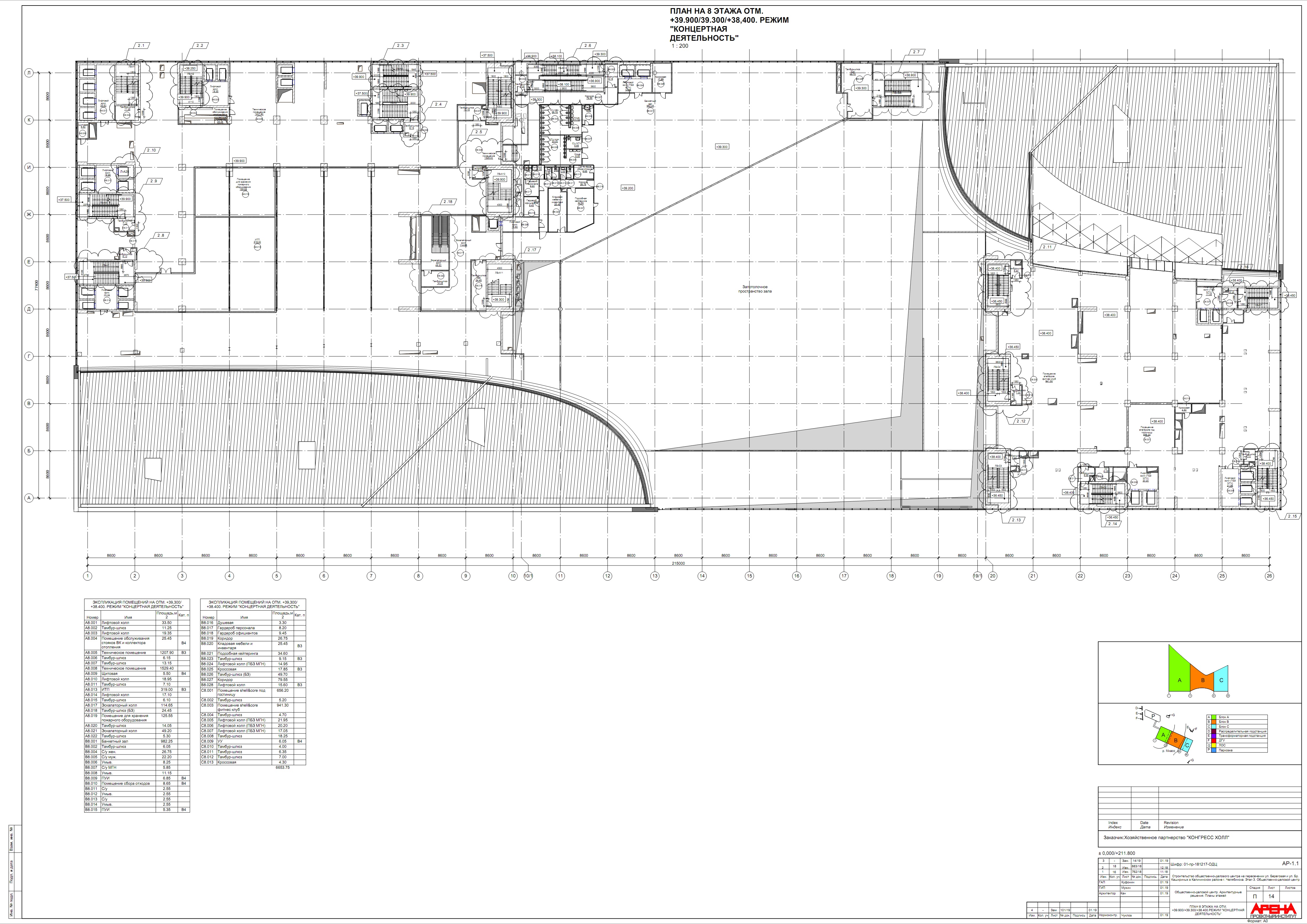
24. План 8 этажа
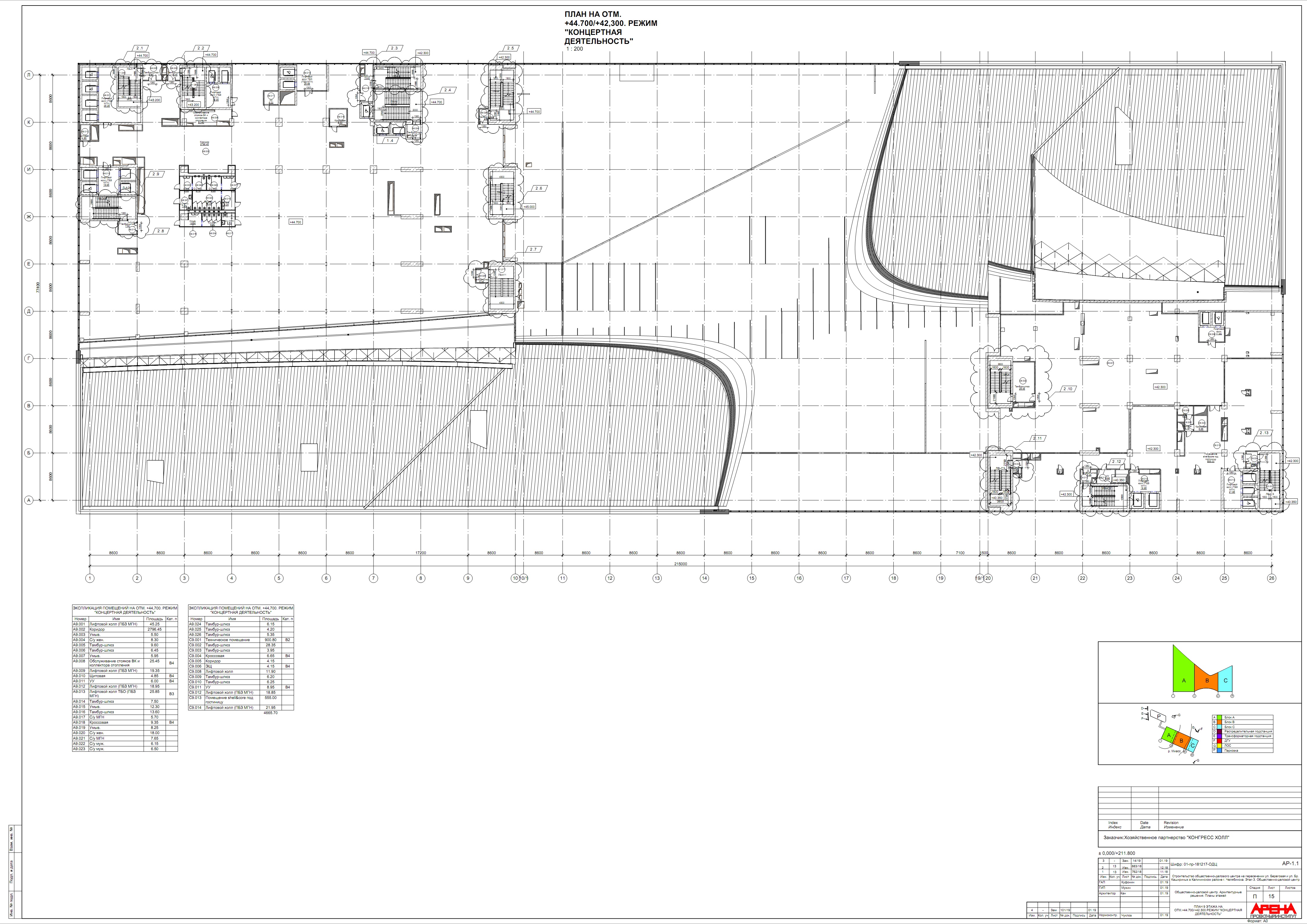
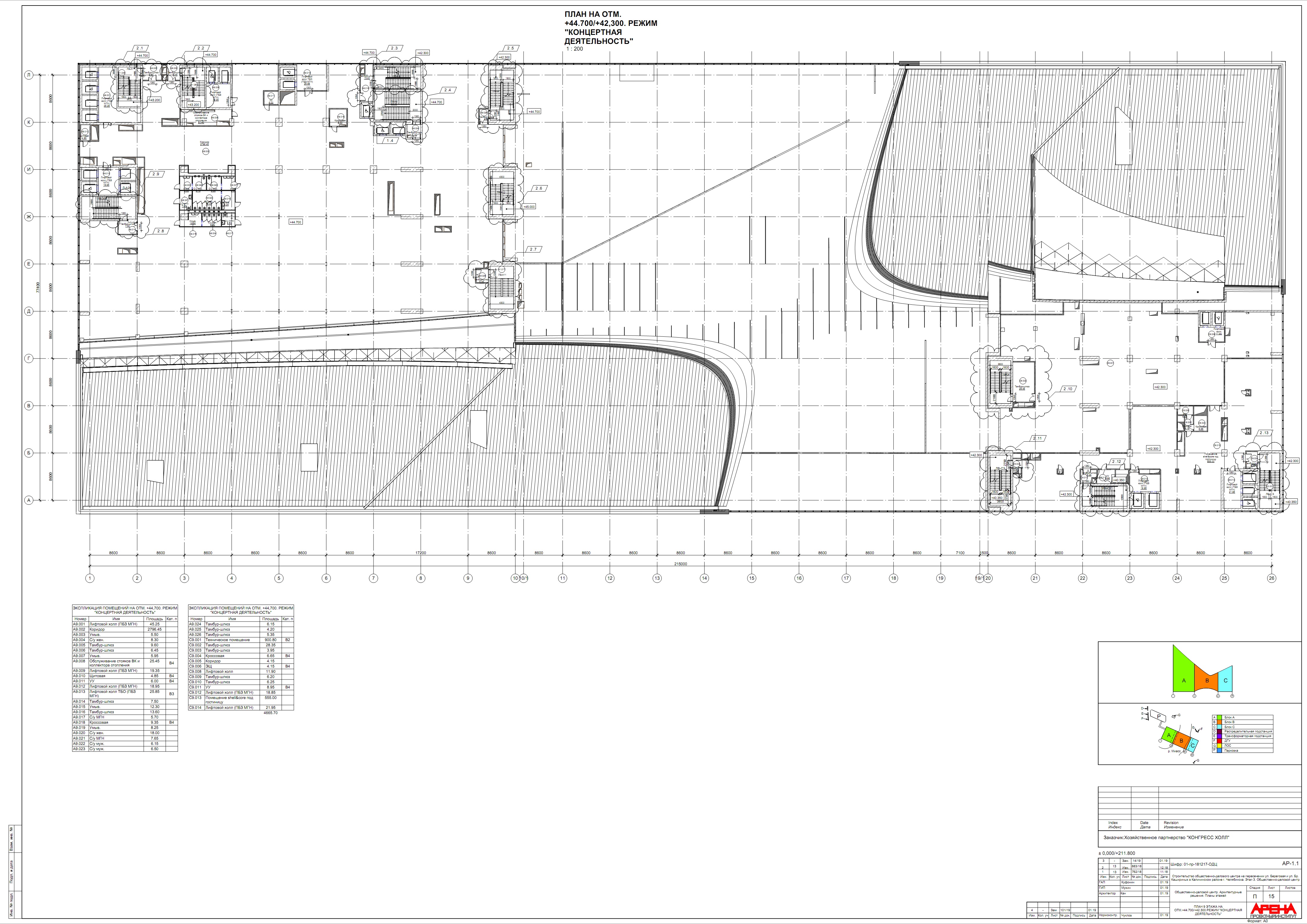
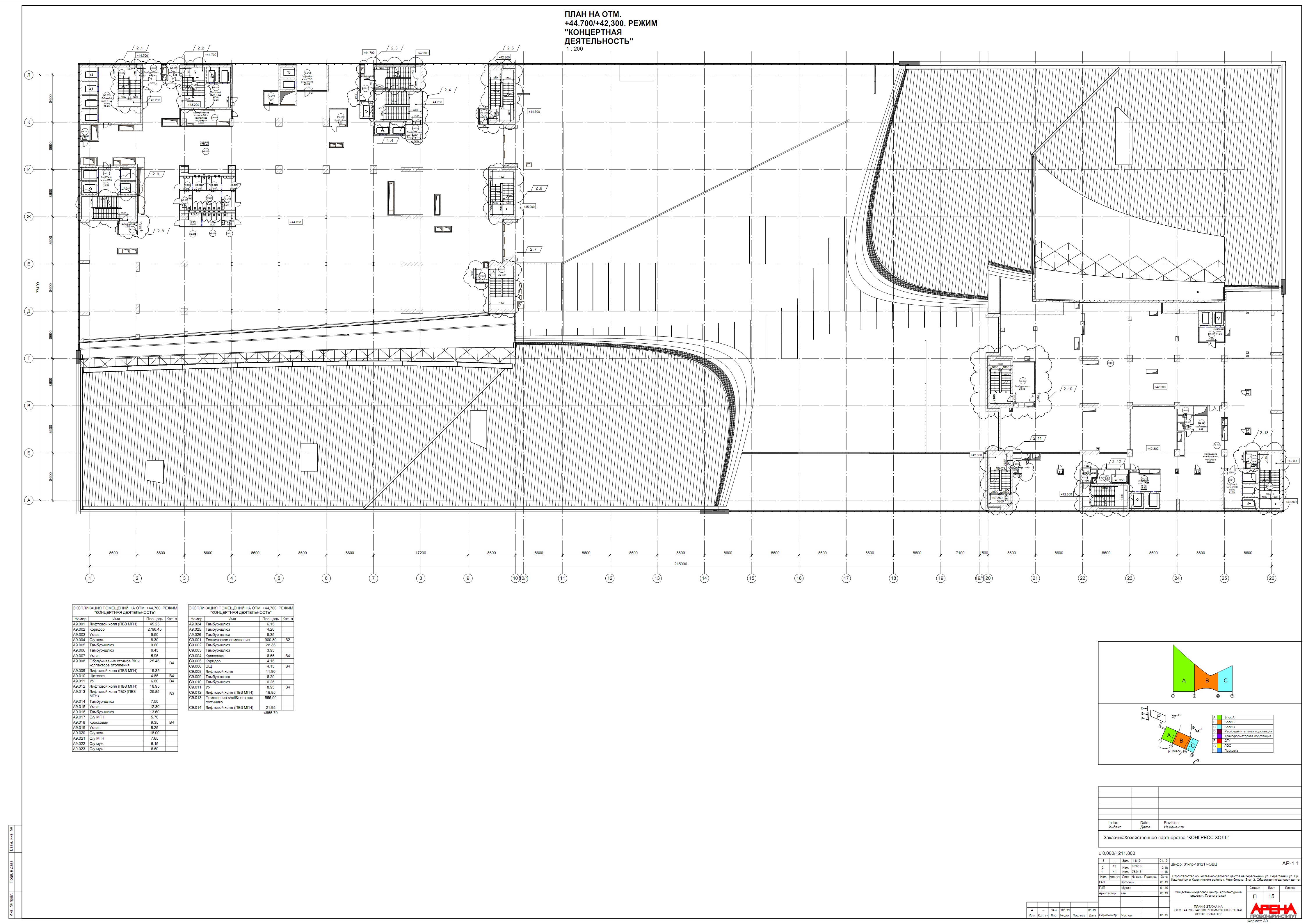
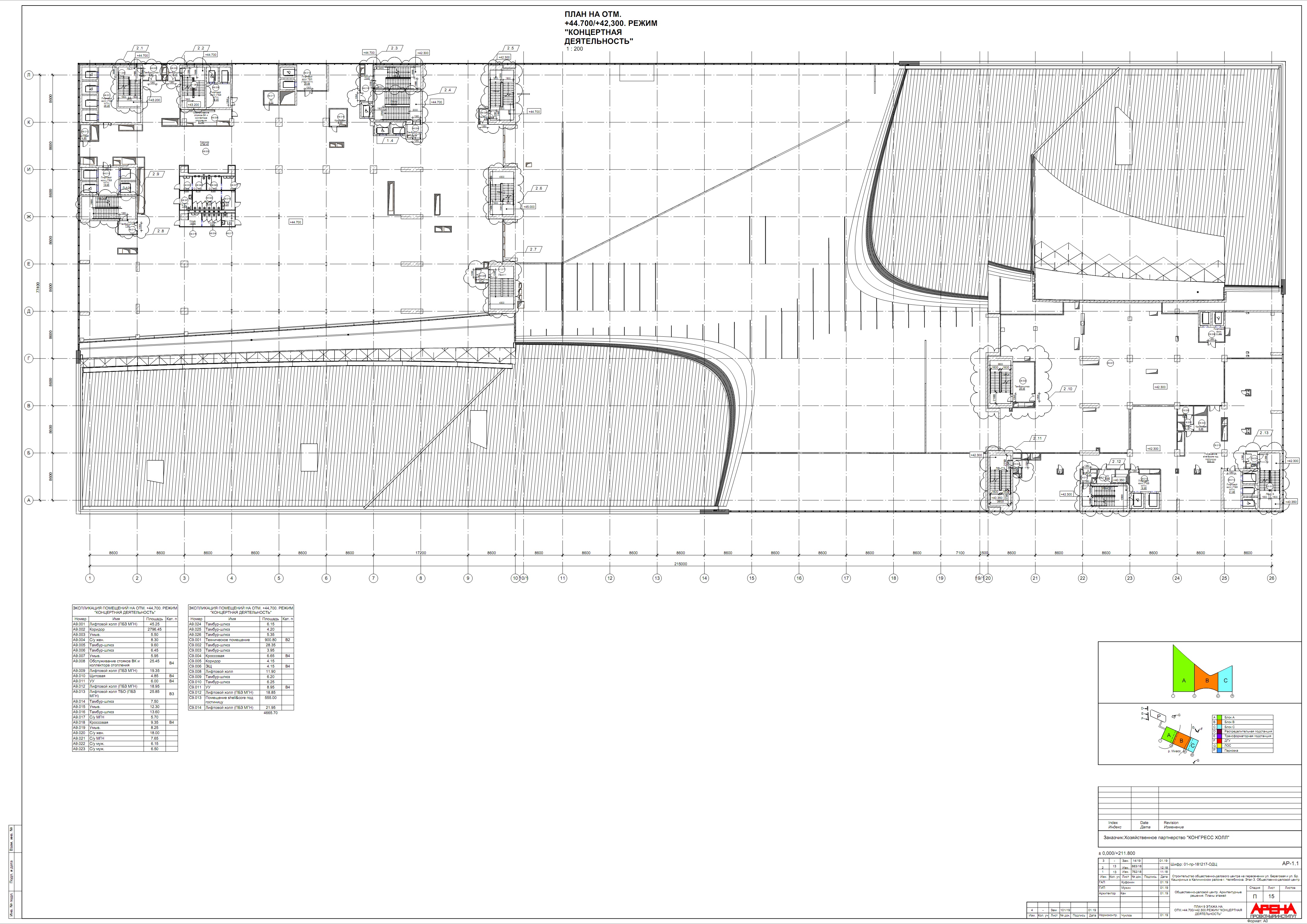
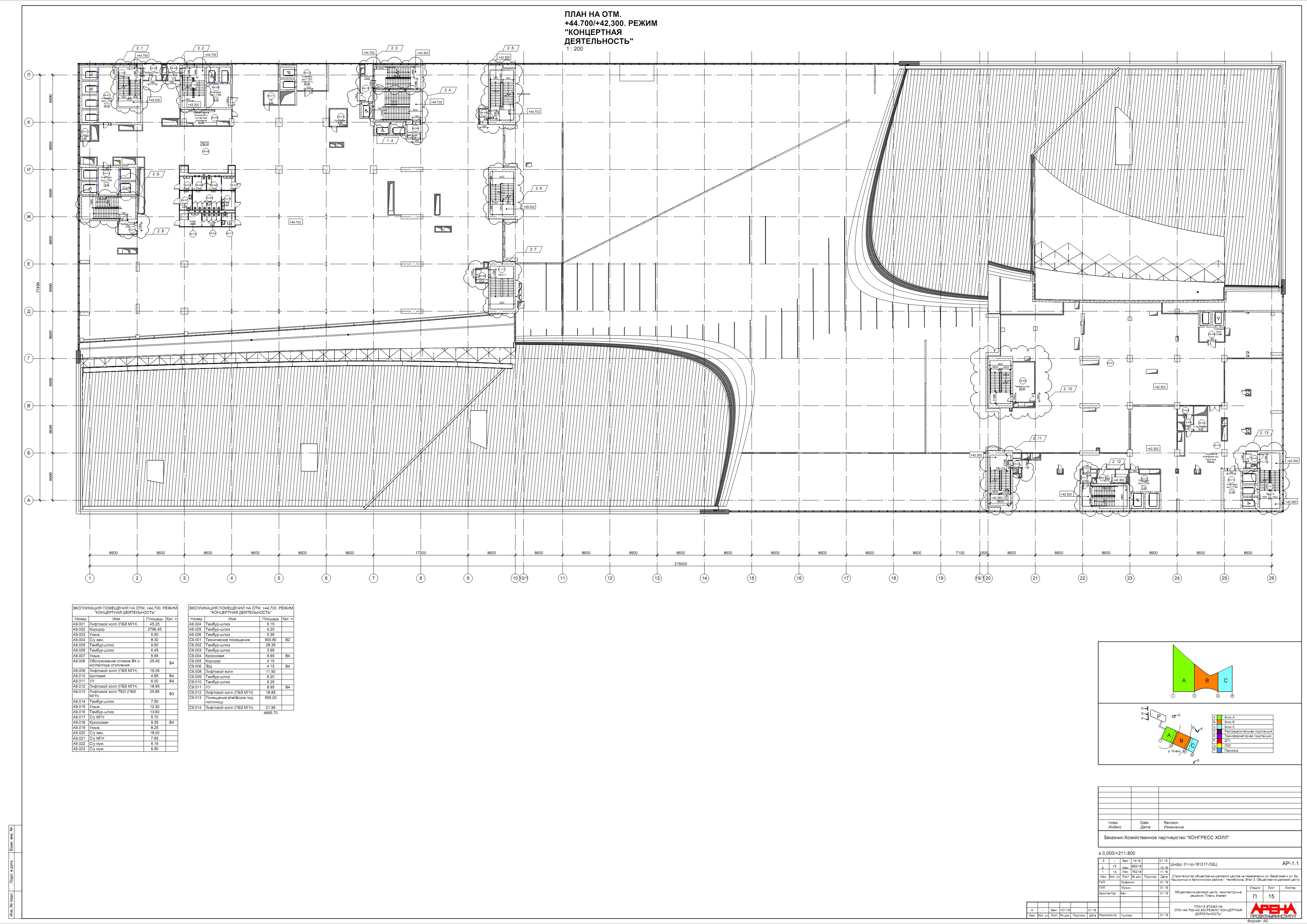
25. План 9 этажа
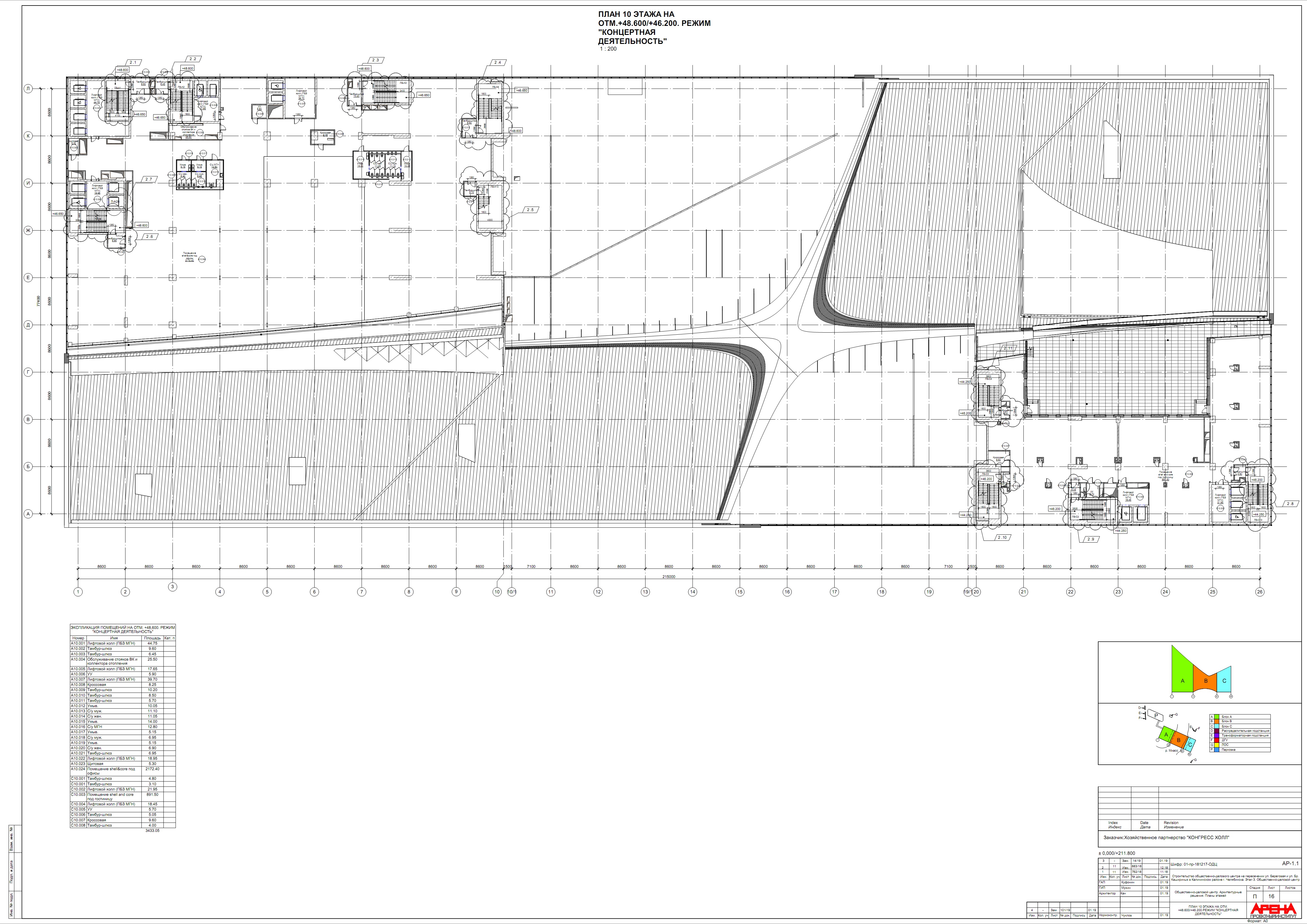
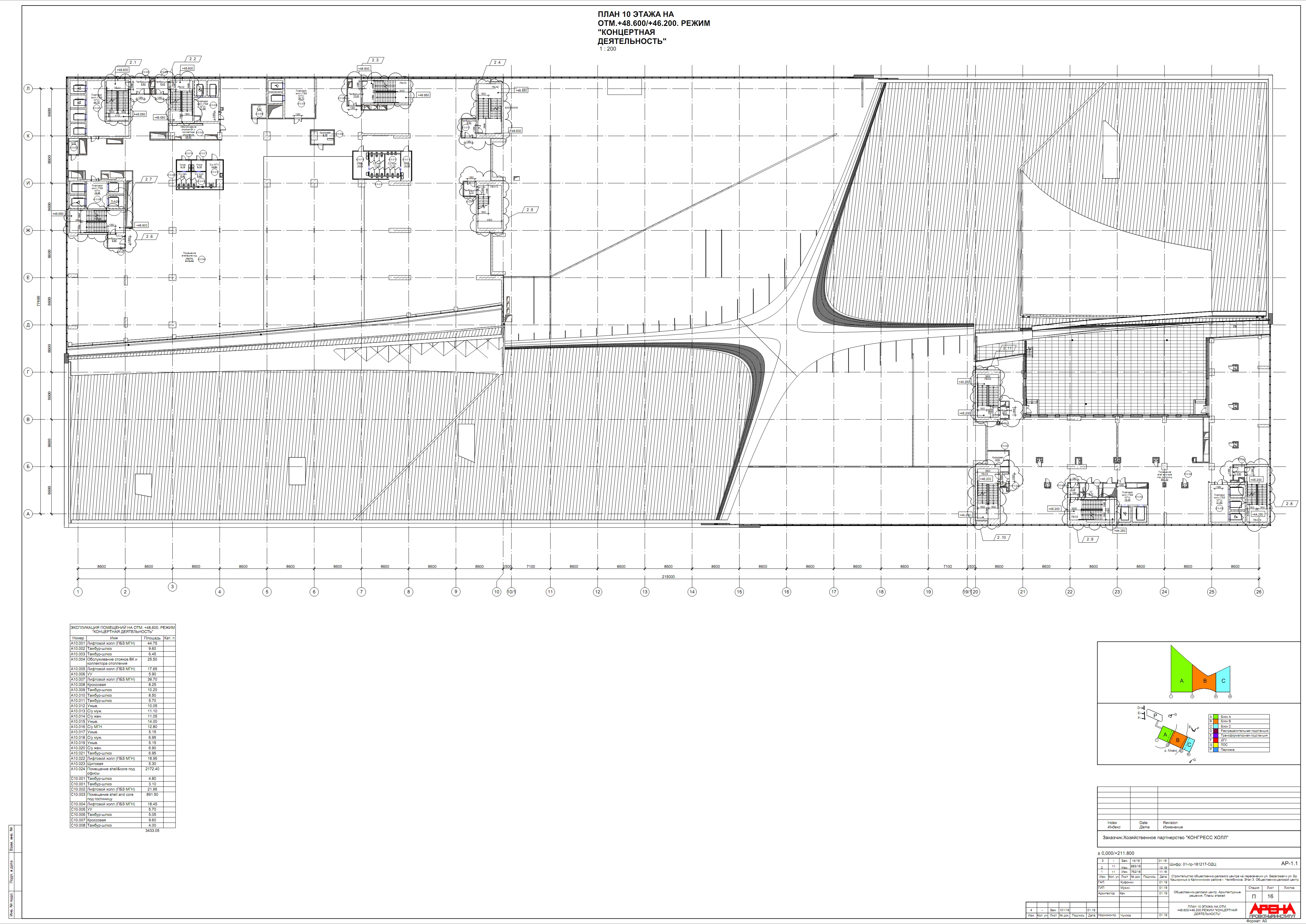
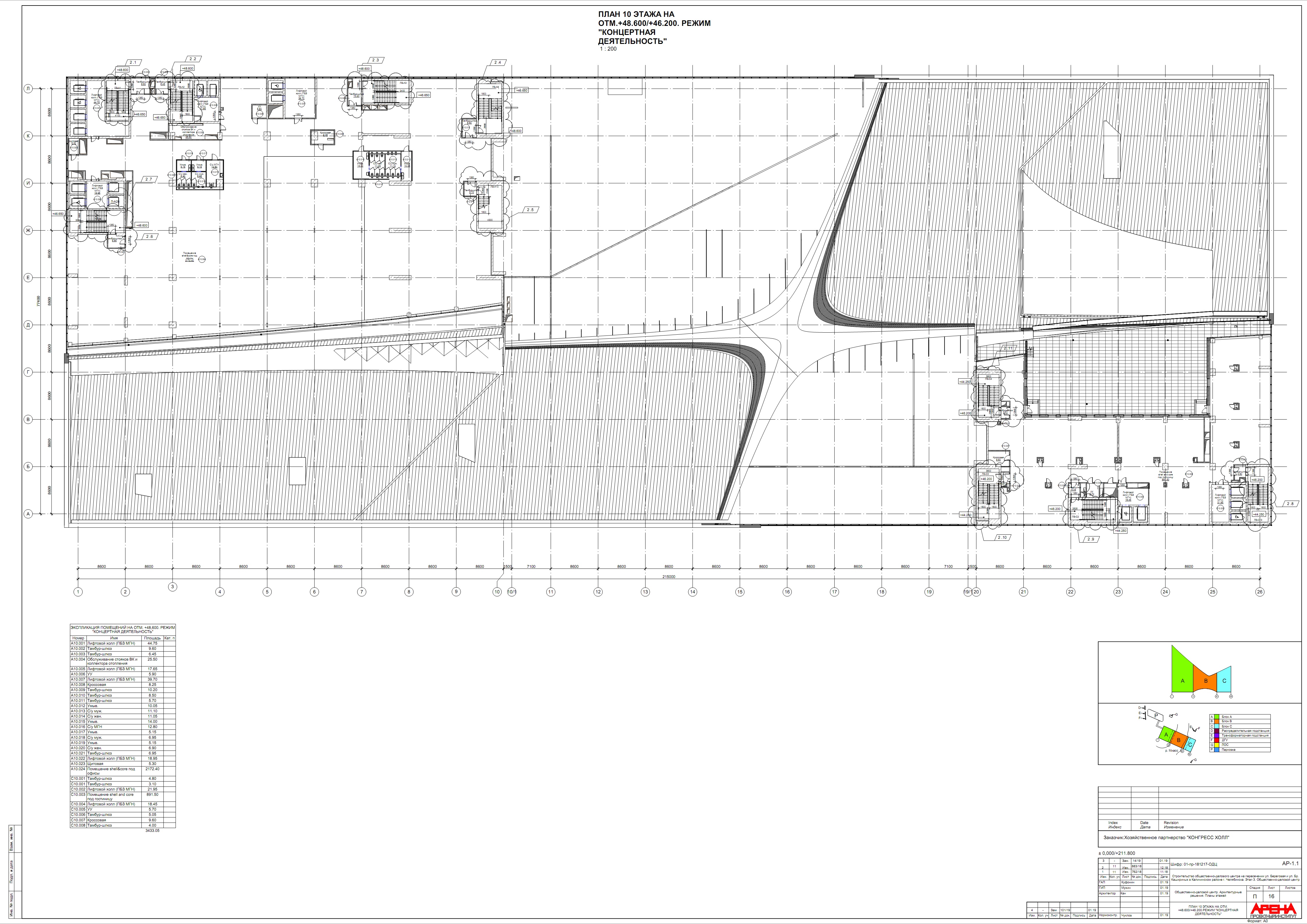
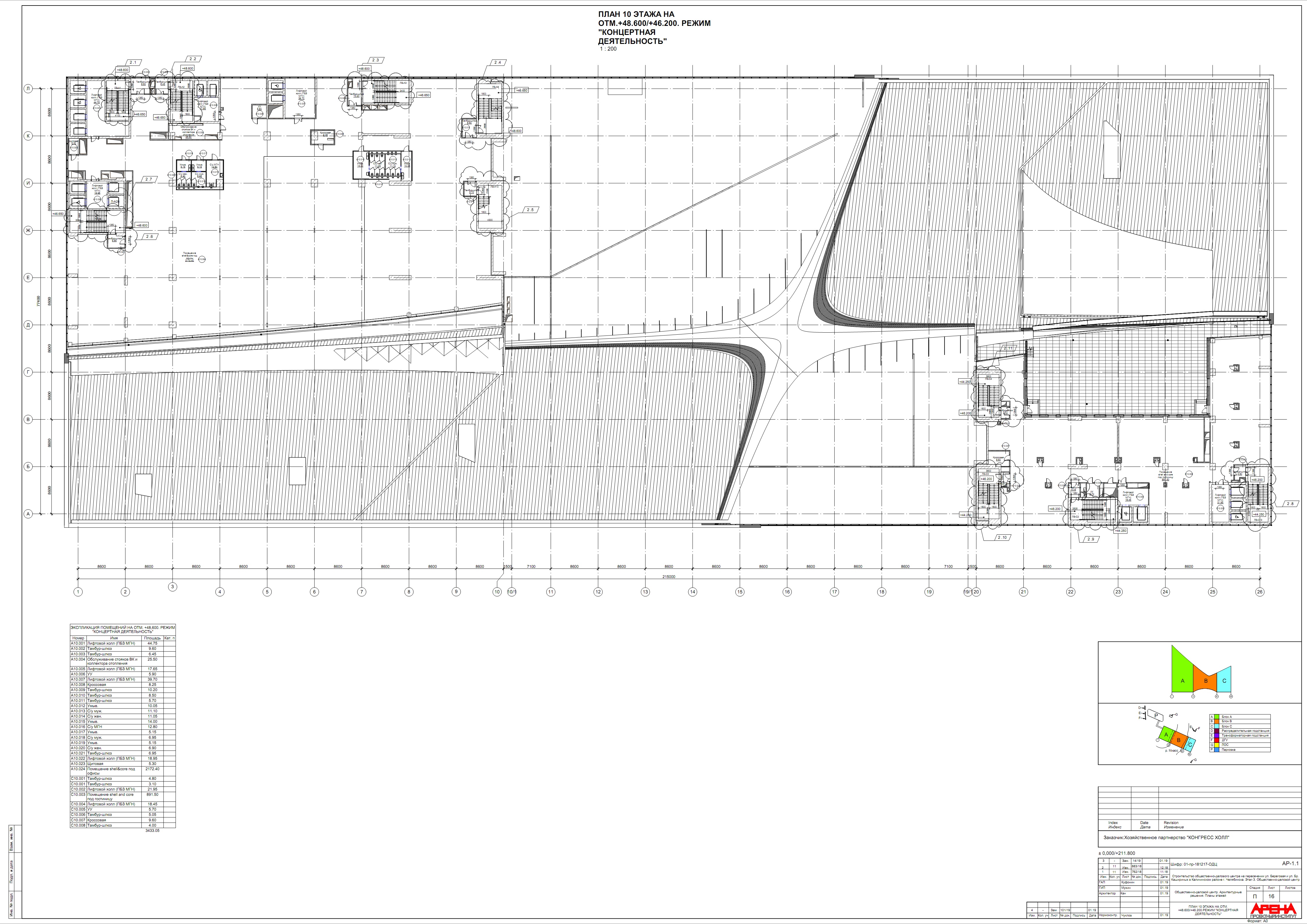
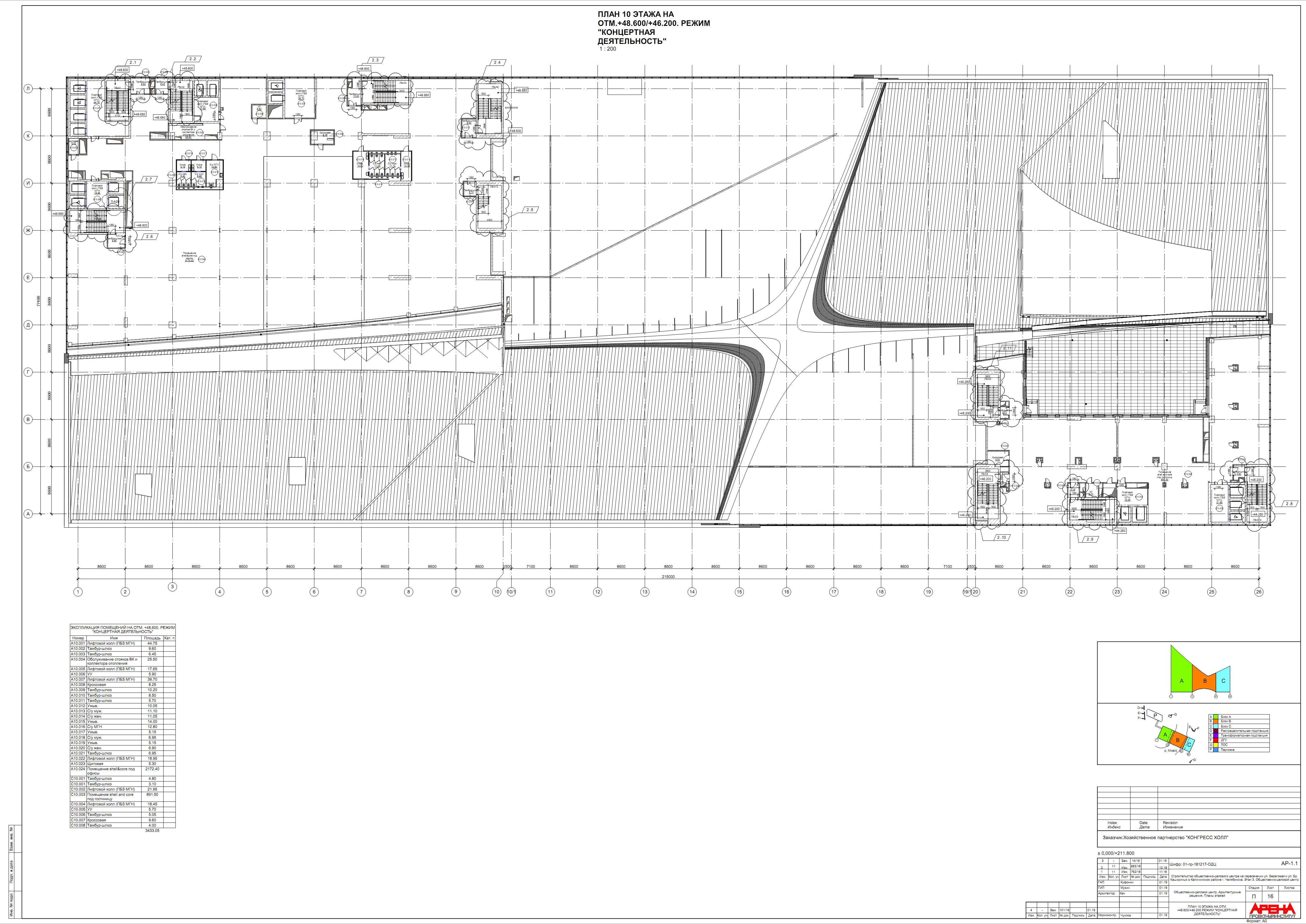
26. План 10 этажа
27. План 11 этажа
28. План 12 этажа
29. План 13 этажа
30. План 14 этажа
31. План 15 этажа
32. План 16 этажа
33. План 17 этажа
34. План 18 этажа
35. План 19 этажа
36. План 20 этажа
37. План 21 этажа
38. План 22 этажа
39. План 23 этажа
40. План 24 этажа
41. План 25 этажа
42. План 26 этажа
43. План 27 этажа
44. План 28 этажа
45. План 29 этажа
46. План 30 этажа
Красивая картинка, которую наверное в Челябинске видели, буквально, все. Общественно-деловой центр, получивший рабочее название - "Крылья".
А что скрывается за этой картинкой?
На официальном сайте выложены гигабайты строительной документации, объёмы которой вполне сопоставимы с полным собранием сочинений В. И. Ленина.
Попытался найти что-нибудь, что могло дать хоть какое-то наглядное представление о том, что-же всё-таки там строится.
Итак: что "откопал" и культурно спёр, условно можно разделить на три части.
Стройгенпланы, планы монтажа
ВСЕ СХЕМЫ КЛИКАБЕЛЬНЫ
01. Стройгенплан на подготовительный период
02. Стройгенплан на период возведения подземной части
03. Стройгенплан на период возведения надземной части
04. Календарный план
07. Блок Б. Схема монтажа несущих металлоконструкций зданий
08. Блок Б. Планы монтажа несущих металлоконструкций зданий
Разрезы
09. Разрез 1-1
10. Разрез 2-2
11. Разрез А 1-1
12. Разрез В 1-1
13. Разрез С 1-1
Планы этажей
14. План подвала
15. План 1 этажа
16. План 2 этажа
17. План тех.подполья
18. План 3 этажа
19. Фрагмент плана 3+
20. План 4 этажа
21. План 5 этажа
22. План 6 этажа
23. План 7 этажа
24. План 8 этажа
25. План 9 этажа
26. План 10 этажа
27. План 11 этажа
28. План 12 этажа
29. План 13 этажа
30. План 14 этажа
31. План 15 этажа
32. План 16 этажа
33. План 17 этажа
34. План 18 этажа
35. План 19 этажа
36. План 20 этажа
37. План 21 этажа
38. План 22 этажа
39. План 23 этажа
40. План 24 этажа
41. План 25 этажа
42. План 26 этажа
43. План 27 этажа
44. План 28 этажа
45. План 29 этажа
46. План 30 этажа
